Dirkjeserf 12
6733 EZ Wekerom
88 m²
280 m²
A
Omschrijving
Deze keurig afgewerkte en instapklare 2-onder-1 kapwoning biedt ultiem woongenot! De gehele begane grond, inclusief de inpandige garage, is voorzien van vloerverwarming. Daarnaast beschikt de woning over een eigen oprit en een royale achtertuin met een speelse indeling, waar u kunt genieten in de veranda of op het terras. Met zijn hoogwaardige afwerking is dit huis perfect voor wie op zoek is naar wooncomfort en luxe in een fijne woonomgeving. Komt u dit pareltje bezichtigen?
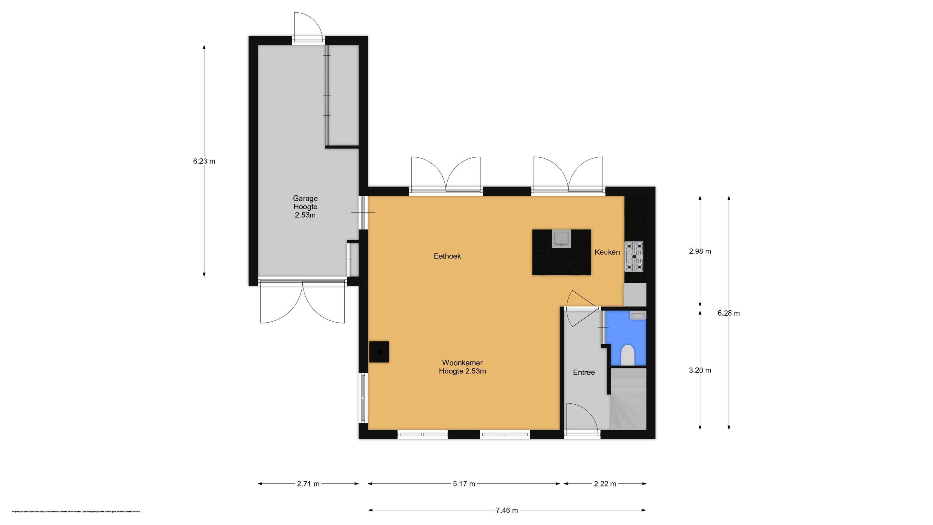
Hal
Een verzorgde binnenkomst zet meteen de juiste toon, zo ook bij deze woning! De hal biedt u de trapopgang naar de eerste verdieping en een toiletruimte met fonteintje. Via een gave stalen deur verkrijgt u toegang tot de keuken.
Keuken
Deze prachtige keuken is een eyecatcher in de woning en sluit perfect aan bij de stijl van het huis. Het eiland in het midden voorziet u van opbergruimte en een gezellige bar waar gasten kunnen aanschuiven. De keuken is meer dan compleet met een 5-pits kookplaat (Smeg), afzuigkap, een grote oven, koelkast en een vaatwasser. Ook verkrijgt u hier via dubbele deuren toegang tot de achtertuin.
Woonkamer
De prachtige woonkamer is heerlijk licht dankzij de vele ramen, die een ruimtelijk en open gevoel creëren. De stijlvolle plavuizen vloer met vloerverwarming geeft de ruimte een luxe uitstraling. Via de dubbele openslaande deuren stapt u zo de achtertuin in, wat het leefgedeelte verbindt met het buitenleven. Voor extra sfeer is er een houtkachel, die ter overname aangeboden wordt, perfect voor knusse, gezellige winterdagen.
Inpandige garage
Ook de inpandige garage is voorzien van vloerverwarming en bereikt u via het leefgedeelte. De vaste kastenwand biedt praktische opbergruimte en beschikt over de opstelling van de C.V.-ketel en de aansluiting van het witgoedapparatuur. Daarnaast vindt u in de garage nog de meterkast, heeft de ruimte dubbele deuren aan de voorzijde en een loopdeur die u toegang geeft tot de achtertuin.
1e verdieping
Ook de eerste verdieping is keurig afgewerkt en u vindt hier drie slaapkamers met een uitstekende maatvoering. De ouderslaapkamer beschikt over een vaste kastenwand, een prachtige vensterbank en een Velux dakraam. Eén van de andere kamers heeft ook een Velux dakraam. Daarnaast zijn alle ramen op deze verdieping voorzien van een hor.
Badkamer
Een plaatje! De badkamer past geheel bij de stijl van de woning en is geheel betegeld. U profiteert hier van een inloopdouche met regendouche en verwarmde douchewand, tweede toilet, ligbad en een wastafelmeubel met wastafel.
Tuin
Welkom in deze prachtige tuin! Deze fraai aangelegde achtertuin heeft een speelse indeling en een royaal oppervlakte, waardoor er volop ruimte is voor ontspanning en plezier. In het verlaagde gedeelte vindt u een sfeervolle veranda, perfect om te ontspannen, met daaraan vast een houten schuur met bergzolder. Bovendien kunt u via een handige poort zo naar de voorzijde van de woning, ideaal! Ook verkrijgt u hier via dubbele deuren toegang tot de achtertuin.
Woonomgeving
Deze tweekapper is gelegen op een rustige plek in de woonwijk nabij een waterpartij. De rust komt mede doordat er alleen bestemmingsverkeer in de straat rijdt. Daarnaast kunt u uw auto voor de woning parkeren of op uw eigen oprit. Verder zijn de openbare voorzieningen op korte afstand te bereiken.
Algemeen
- Energielabel A
- Vloerverwarming gehele begane grond
- 5 zonnepanelen
- Eigen oprit met inpandige garage
- Veranda en houten schuur in achtertuin
In- en uitklappen
Meer lezen
Minder lezen
Hal
Een verzorgde binnenkomst zet meteen de juiste toon, zo ook bij deze woning! De hal biedt u de trapopgang naar de eerste verdieping en een toiletruimte met fonteintje. Via een gave stalen deur verkrijgt u toegang tot de keuken.
Keuken
Deze prachtige keuken is een eyecatcher in de woning en sluit perfect aan bij de stijl van het huis. Het eiland in het midden voorziet u van opbergruimte en een gezellige bar waar gasten kunnen aanschuiven. De keuken is meer dan compleet met een 5-pits kookplaat (Smeg), afzuigkap, een grote oven, koelkast en een vaatwasser. Ook verkrijgt u hier via dubbele deuren toegang tot de achtertuin.
Woonkamer
De prachtige woonkamer is heerlijk licht dankzij de vele ramen, die een ruimtelijk en open gevoel creëren. De stijlvolle plavuizen vloer met vloerverwarming geeft de ruimte een luxe uitstraling. Via de dubbele openslaande deuren stapt u zo de achtertuin in, wat het leefgedeelte verbindt met het buitenleven. Voor extra sfeer is er een houtkachel, die ter overname aangeboden wordt, perfect voor knusse, gezellige winterdagen.
Inpandige garage
Ook de inpandige garage is voorzien van vloerverwarming en bereikt u via het leefgedeelte. De vaste kastenwand biedt praktische opbergruimte en beschikt over de opstelling van de C.V.-ketel en de aansluiting van het witgoedapparatuur. Daarnaast vindt u in de garage nog de meterkast, heeft de ruimte dubbele deuren aan de voorzijde en een loopdeur die u toegang geeft tot de achtertuin.
1e verdieping
Ook de eerste verdieping is keurig afgewerkt en u vindt hier drie slaapkamers met een uitstekende maatvoering. De ouderslaapkamer beschikt over een vaste kastenwand, een prachtige vensterbank en een Velux dakraam. Eén van de andere kamers heeft ook een Velux dakraam. Daarnaast zijn alle ramen op deze verdieping voorzien van een hor.
Badkamer
Een plaatje! De badkamer past geheel bij de stijl van de woning en is geheel betegeld. U profiteert hier van een inloopdouche met regendouche en verwarmde douchewand, tweede toilet, ligbad en een wastafelmeubel met wastafel.
Tuin
Welkom in deze prachtige tuin! Deze fraai aangelegde achtertuin heeft een speelse indeling en een royaal oppervlakte, waardoor er volop ruimte is voor ontspanning en plezier. In het verlaagde gedeelte vindt u een sfeervolle veranda, perfect om te ontspannen, met daaraan vast een houten schuur met bergzolder. Bovendien kunt u via een handige poort zo naar de voorzijde van de woning, ideaal! Ook verkrijgt u hier via dubbele deuren toegang tot de achtertuin.
Woonomgeving
Deze tweekapper is gelegen op een rustige plek in de woonwijk nabij een waterpartij. De rust komt mede doordat er alleen bestemmingsverkeer in de straat rijdt. Daarnaast kunt u uw auto voor de woning parkeren of op uw eigen oprit. Verder zijn de openbare voorzieningen op korte afstand te bereiken.
Algemeen
- Energielabel A
- Vloerverwarming gehele begane grond
- 5 zonnepanelen
- Eigen oprit met inpandige garage
- Veranda en houten schuur in achtertuin
Kenmerken
Overdracht
Bouw
Oppervlakten en inhoud
Indeling
Energie
Kadastrale gegevens
Buitenruimte
Parkeergelegenheid
Vraagprijs
€ 679.000 k.k
Status
Onder bod
Aanvaarding
In overleg
Soort woonhuis
Eengezinswoning, twee onder een kapwoning
Soort bouw
Bestaande bouw
Bouwjaar
2018
Soort dak
Pannen zadeldak
Gebruiksoppervlakten
Wonen
88 m²
Externe bergruimte
5 m²
Perceel
280 m²
Inhoud
407 m²
Aantal badkamers
1 badkamer en 1 toilet
Badkamervoorzieningen
Ligbad, toilet, wastafel, wastafelmeubel, inloopdouche en vloerverwarming
Aantal woonlagen
3 woonlagen
Voorzieningen
Dakraam en zonnepanelen
Energielabel
A
Isolatie
Dakisolatie, muurisolatie, vloerisolatie en dubbel glas
Verwarming
Cv ketel
Warm water
Cv ketel
Verwarming verbruik
Gas
Perceel
Ede B 5974
Oppervlakte
250 m²
Eigendomssituatie
Volle eigendom
Ligging
Aan rustige weg, in woonwijk en vrij uitzicht
Tuin
Achtertuin, voortuin en zijtuin
Achtertuin
225 m² (15,0 meter diep en 15,0 meter breed)
Ligging tuin
Gelegen op zuiden bereikbaar via achterom
Soort parkeergelegenheid
Openbaar parkeren en op eigen terrein
Vergelijkbaar aanbod
En, wat zijn uw uitdagingen of dromen? We helpen u graag actief.
Misschien kunt u niet de woning of het bedrijfspand vinden dat een kant-en-klaar antwoord is op uw vraag. Misschien bent u benieuwd hoe wij tegen uw wensen aankijken, met onze kennis van de lokale markt en ons grote netwerk van aanbieders en zoekers. Mogen we met u meedenken?