Iepenhof 15
3771 XA Barneveld
136 m²
180 m²
A
Omschrijving
Wonen in woonwijk 'Vliegersveld' met alle ruimte én op fietsafstand van alle openbare voorzieningen. Deze royale middenwoning biedt u 18 zonnepanelen en een warmtepomp waardoor u hier toekomstgericht én energiezuinig woont. Verder is de woning voorzien van een royaal leefgedeelte, een praktische bijkeuken en maar liefst zes slaapkamers. Achter de woning ligt een fijne achtertuin op het zuidoosten met een overkapping, zodat u hier heerlijk kunt genieten van de buitenlucht! Mag u binnenkort deze woning uw (t)huis noemen?
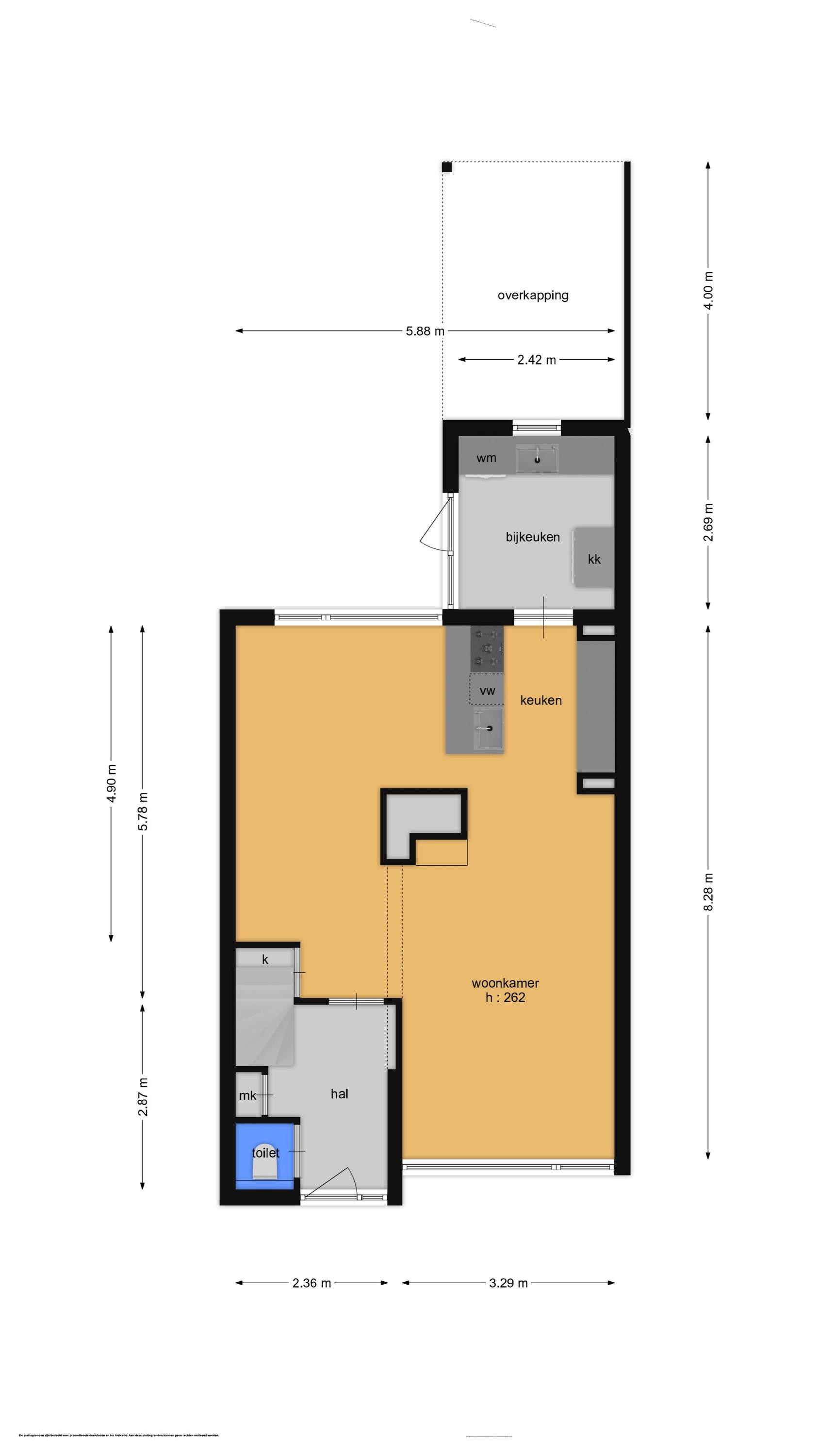
Hal:
De woning komt u binnen in de lichte hal. Hier vindt u de garderobe, een toilet en de trapopgang naar de eerste verdieping. Een praktische ruimte waar uw jas en schoenen meteen een plek krijgen. Vervolgens lopen we verder naar de woonkamer.
Woonkamer:
Gelijk bij binnenkomst valt de unieke indeling van het leefgedeelte op. Midden in de ruimte staat een gaskachel die op een natuurlijke manier een scheiding maakt tussen het zitgedeelte en de keuken. Daarbij zorgt de gaskachel voor extra warmte op koudere dagen. Door het grote raampartij aan de voorzijde valt er veel daglicht naar binnen. Verder is de woonkamer netjes afgewerkt met een gestuukt plafond, lichte wanden en een houten vloer. In de praktische trapkast kunt u uw huisvoorraad en andere spullen opbergen.
Keuken:
De keuken is ruim opgezet en in twee delen verdeeld. Het kookeiland beschikt over een 4-pits inductiekookplaat, een afzuigkap en een vaatwasmachine. Hier kookt u met gemak en met alle benodigde apparatuur. Aan de andere zijde bevindt zich een vaste kastenwand met daarin de oven en veel kastruimte. Alle keukenbenodigdheden kunt u hier netjes opbergen.
Naast de keuken is er nog plek voor een eettafel, wat u een fijne plek biedt om te dineren te borrelen of om gewoon aan te schuiven voor een kopje koffie.
Eerste verdieping:
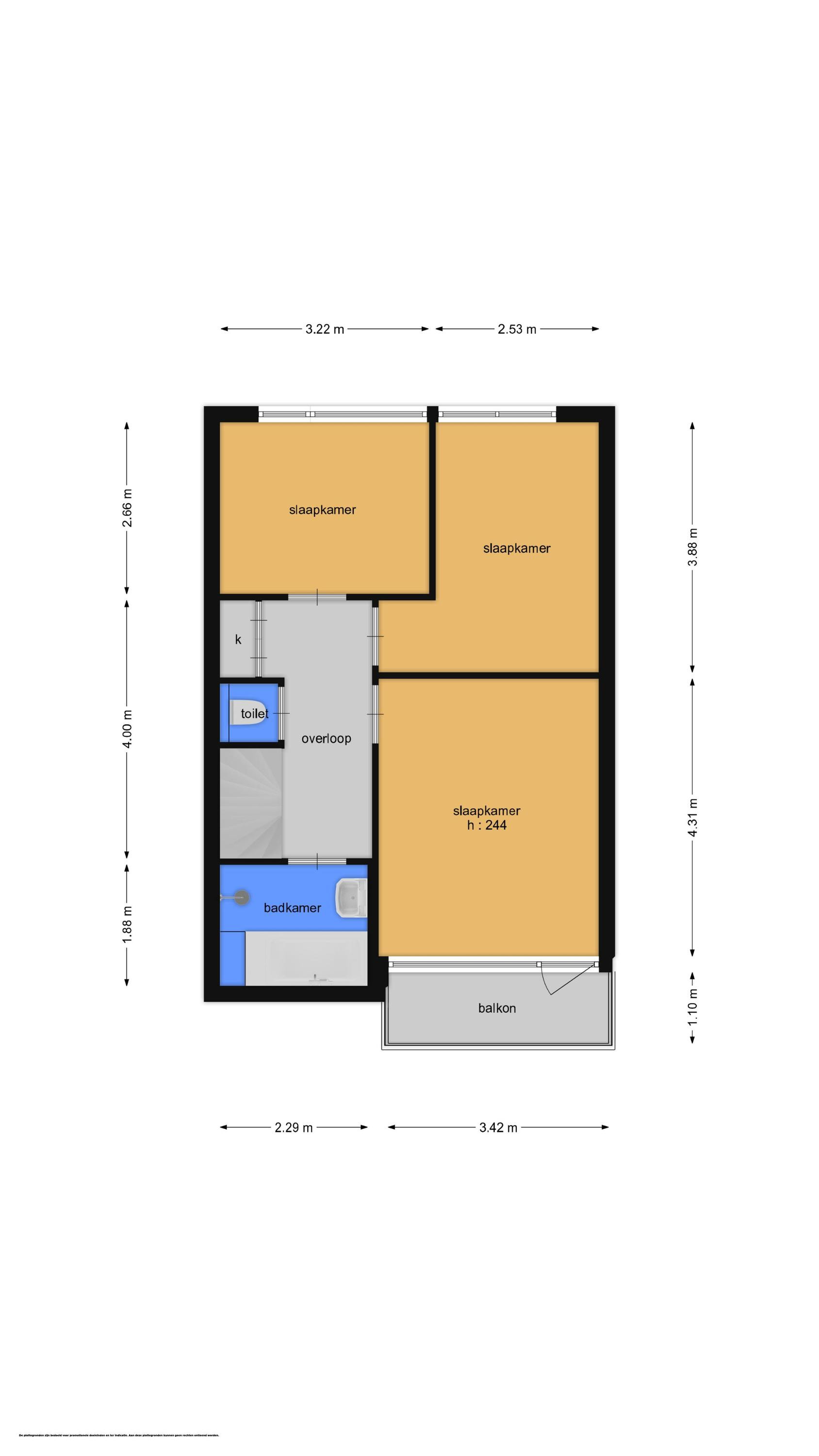
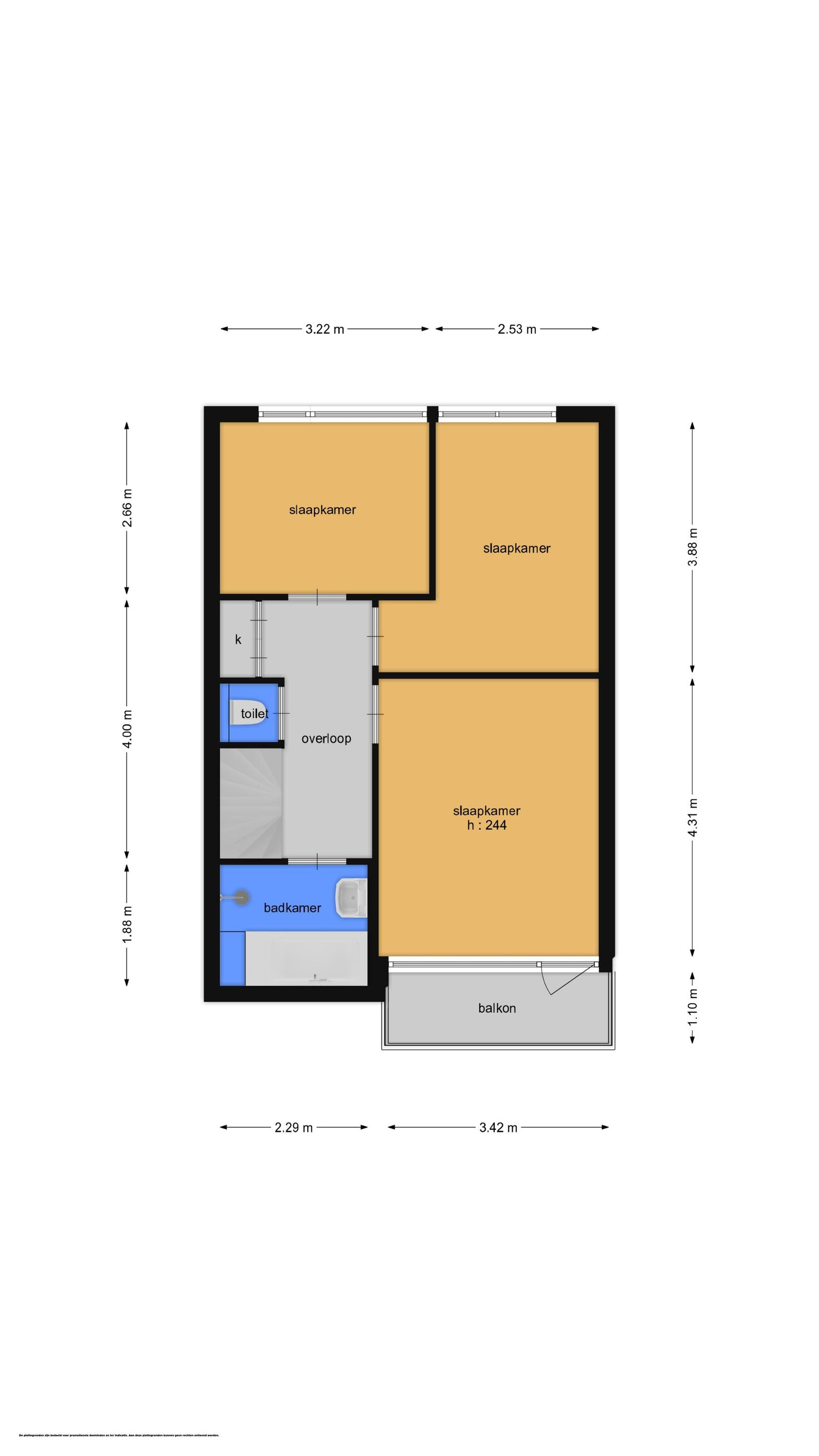
Deze woning biedt u maar liefst zes slaapkamers. Zo heeft elk gezinslid zijn/haar eigen plekje, of heeft u een ruimte voor een kantoor of hobbykamer. Op de eerste verdieping treffen we drie kamers aan, twee aan de achterzijde en één aan de voorzijde. Alle kamers hebben een uitstekende maatvoering. De slaapkamer aan de voorzijde geeft u toegang tot het balkon. Op de overloop bevindt zich een vaste kast en een separaat toiletruimte.
Badkamer:
De badkamer is afgewerkt met een donkere kleurstelling wat zorgt voor een modern geheel. In de badkamer profiteert u van een ligbad, een inloopdouche, een wastafelmeubel met wastafel en een designradiator.
Tweede verdieping:
Wat veel ruimte, dat kenmerkt deze tweede verdieping. Aan de achterzijde is een dakkapel geplaatst, wat zorgt voor veel extra ruimte. De verdieping biedt u drie slaapkamers. Alle kamers zijn voorzien van bergruimte achter knieschot. Op één kamer treft u een vaste kast met daarin de opstelling van de warmtepomp en de boiler (300L). Een andere kamer beschikt over een groot Velux dakraam. Verder vindt u op de overloop nog een Velux dakraam.
Bijkeuken:
Vanuit de keuken bereiken we de praktische bijkeuken. In de bijkeuken bevindt zich de een keukenblok, de aansluiting voor de witgoedapparatuur en een losstaande koelkast (blijft achter). Een fijne ruimte die u extra gemak biedt in het dagelijks huishouden. Via de bijkeuken komen we in de tuin.
Tuin:
De achtertuin is verzorgd aangelegd en een fijne ruimte voor het buitenleven. Direct achter de woning vindt u een terras waar u een eettafel of een loungeset kunt plaatsen. Vervolgens ligt er een stuk kunstgras, met daarnaast een overkapping waardoor u op minder mooie dagen ook kunt genieten van het buiten zijn. Achter in de tuin is nog een terras waar u ook een fijne zithoek kunt plaatsen. De tuin is gelegen op het zuidoosten, dat betekent veel genieten van de zon. Verder is de tuin voorzien van een stenen berging met een schuifdeur, handig voor het stallen van de fietsen, de tuinspullen en uw gereedschap. De tuin is ook te bereiken via een eigen achterom, praktisch als u met de fiets bent.
Woonomgeving:
Op een rustige plek vinden we deze woning in woonwijk 'Vliegersveld'. In de wijk bevinden zich meerdere parkeerplaatsen voor het plaatsen van uw auto. De woning ligt op een perfecte locatie, zo vindt u op fietsafstand het Schaffelaarse Bos, het centrum van Barneveld en andere openbare voorzieningen. Ook zijn de uitvalswegen, zoals de A1 en A30 op korte afstand te bereiken.
Algemeen:
- Energielabel A
- Warmtepomp met boiler (300L)
- 18 zonnepanelen
In- en uitklappen
Meer lezen
Minder lezen
Hal:
De woning komt u binnen in de lichte hal. Hier vindt u de garderobe, een toilet en de trapopgang naar de eerste verdieping. Een praktische ruimte waar uw jas en schoenen meteen een plek krijgen. Vervolgens lopen we verder naar de woonkamer.
Woonkamer:
Gelijk bij binnenkomst valt de unieke indeling van het leefgedeelte op. Midden in de ruimte staat een gaskachel die op een natuurlijke manier een scheiding maakt tussen het zitgedeelte en de keuken. Daarbij zorgt de gaskachel voor extra warmte op koudere dagen. Door het grote raampartij aan de voorzijde valt er veel daglicht naar binnen. Verder is de woonkamer netjes afgewerkt met een gestuukt plafond, lichte wanden en een houten vloer. In de praktische trapkast kunt u uw huisvoorraad en andere spullen opbergen.
Keuken:
De keuken is ruim opgezet en in twee delen verdeeld. Het kookeiland beschikt over een 4-pits inductiekookplaat, een afzuigkap en een vaatwasmachine. Hier kookt u met gemak en met alle benodigde apparatuur. Aan de andere zijde bevindt zich een vaste kastenwand met daarin de oven en veel kastruimte. Alle keukenbenodigdheden kunt u hier netjes opbergen.
Naast de keuken is er nog plek voor een eettafel, wat u een fijne plek biedt om te dineren te borrelen of om gewoon aan te schuiven voor een kopje koffie.
Eerste verdieping:
Deze woning biedt u maar liefst zes slaapkamers. Zo heeft elk gezinslid zijn/haar eigen plekje, of heeft u een ruimte voor een kantoor of hobbykamer. Op de eerste verdieping treffen we drie kamers aan, twee aan de achterzijde en één aan de voorzijde. Alle kamers hebben een uitstekende maatvoering. De slaapkamer aan de voorzijde geeft u toegang tot het balkon. Op de overloop bevindt zich een vaste kast en een separaat toiletruimte.
Badkamer:
De badkamer is afgewerkt met een donkere kleurstelling wat zorgt voor een modern geheel. In de badkamer profiteert u van een ligbad, een inloopdouche, een wastafelmeubel met wastafel en een designradiator.
Tweede verdieping:
Wat veel ruimte, dat kenmerkt deze tweede verdieping. Aan de achterzijde is een dakkapel geplaatst, wat zorgt voor veel extra ruimte. De verdieping biedt u drie slaapkamers. Alle kamers zijn voorzien van bergruimte achter knieschot. Op één kamer treft u een vaste kast met daarin de opstelling van de warmtepomp en de boiler (300L). Een andere kamer beschikt over een groot Velux dakraam. Verder vindt u op de overloop nog een Velux dakraam.
Bijkeuken:
Vanuit de keuken bereiken we de praktische bijkeuken. In de bijkeuken bevindt zich de een keukenblok, de aansluiting voor de witgoedapparatuur en een losstaande koelkast (blijft achter). Een fijne ruimte die u extra gemak biedt in het dagelijks huishouden. Via de bijkeuken komen we in de tuin.
Tuin:
De achtertuin is verzorgd aangelegd en een fijne ruimte voor het buitenleven. Direct achter de woning vindt u een terras waar u een eettafel of een loungeset kunt plaatsen. Vervolgens ligt er een stuk kunstgras, met daarnaast een overkapping waardoor u op minder mooie dagen ook kunt genieten van het buiten zijn. Achter in de tuin is nog een terras waar u ook een fijne zithoek kunt plaatsen. De tuin is gelegen op het zuidoosten, dat betekent veel genieten van de zon. Verder is de tuin voorzien van een stenen berging met een schuifdeur, handig voor het stallen van de fietsen, de tuinspullen en uw gereedschap. De tuin is ook te bereiken via een eigen achterom, praktisch als u met de fiets bent.
Woonomgeving:
Op een rustige plek vinden we deze woning in woonwijk 'Vliegersveld'. In de wijk bevinden zich meerdere parkeerplaatsen voor het plaatsen van uw auto. De woning ligt op een perfecte locatie, zo vindt u op fietsafstand het Schaffelaarse Bos, het centrum van Barneveld en andere openbare voorzieningen. Ook zijn de uitvalswegen, zoals de A1 en A30 op korte afstand te bereiken.
Algemeen:
- Energielabel A
- Warmtepomp met boiler (300L)
- 18 zonnepanelen
Kenmerken
Overdracht
Bouw
Oppervlakten en inhoud
Indeling
Energie
Kadastrale gegevens
Buitenruimte
Parkeergelegenheid
Vraagprijs
€ 495.000 k.k
Status
Verkocht
Soort woonhuis
Eengezinswoning, tussenwoning
Soort bouw
Bestaande bouw
Bouwjaar
1971
Soort dak
Pannen zadeldak
Gebruiksoppervlakten
Wonen
136 m²
Gebouwgebonden buitenruimte
4 m²
Externe bergruimte
9 m²
Perceel
180 m²
Inhoud
459 m²
Aantal badkamers
1 badkamer en 2 toiletten
Badkamervoorzieningen
Ligbad, wastafel, wastafelmeubel en inloopdouche
Aantal woonlagen
3 woonlagen
Voorzieningen
Dakraam en zonnepanelen
Energielabel
A
Isolatie
Dakisolatie, muurisolatie, vloerisolatie en dubbel glas
Verwarming
Warmtepomp
Warm water
Elektrische boiler eigendom
Perceel
Barneveld B 3268
Oppervlakte
180 m²
Eigendomssituatie
Volle eigendom
Ligging
In woonwijk
Tuin
Achtertuin en voortuin
Achtertuin
87 m² (14,5 meter diep en 6,0 meter breed)
Ligging tuin
Gelegen op zuidoosten bereikbaar via achterom
Soort parkeergelegenheid
Openbaar parkeren
Vergelijkbaar aanbod
En, wat zijn uw uitdagingen of dromen? We helpen u graag actief.
Misschien kunt u niet de woning of het bedrijfspand vinden dat een kant-en-klaar antwoord is op uw vraag. Misschien bent u benieuwd hoe wij tegen uw wensen aankijken, met onze kennis van de lokale markt en ons grote netwerk van aanbieders en zoekers. Mogen we met u meedenken?