Molecaten 52
3772 LN Barneveld
108 m²
159 m²
B
Omschrijving
Een eindwoning met een royaal leefgedeelte met een half open keuken, vier slaapkamers, een fijne achtertuin met overkapping en 11 zonnepanelen. Dit zijn zomaar wat kenmerken van deze woning. Plan een bezichtiging en kijk of u hier uw wensenlijstje kunt afvinken!
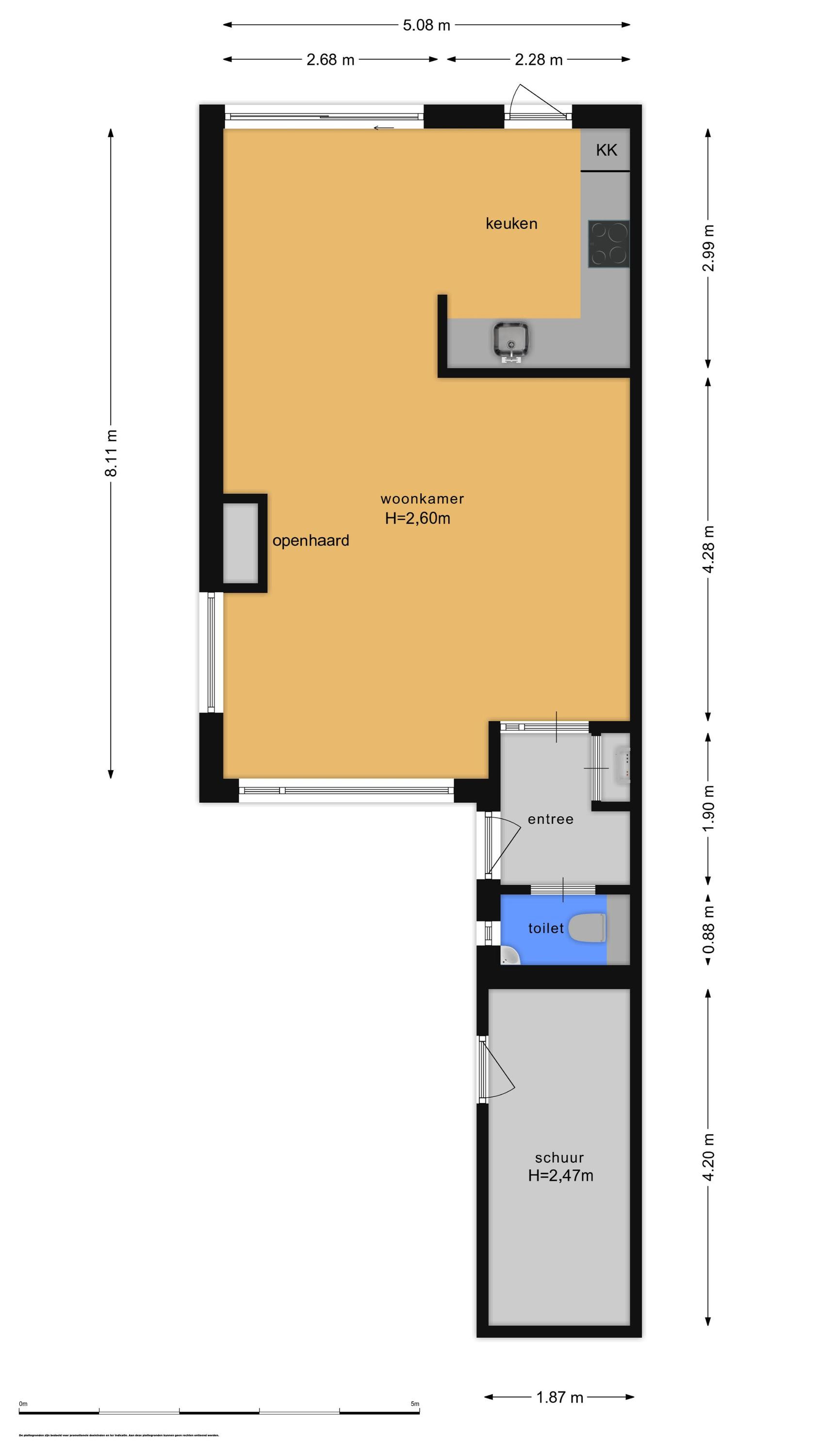
Hal:
Binnenkomen doet u in de hal, de plek waar u uw jas ophangt en uw schoenen uitdoet. In de hal zijn het toilet, de garderobe en de meterkast te vinden. Vanuit de hal stapt u direct de woonkamer in.
Woonkamer:
De woonkamer is een fijne, lichte ruimte met een eiken houten parketvloer en lichte wanden, een rustige basis. Aan de voorzijde vindt u een groot raampartij met een elektrisch bedienbaar rolluik, wat u extra privacy en comfort biedt. In de ruimte brengt de open haard extra sfeer én zorgt voor een fijne warmte in de wintermaanden. De vaste kastenwand geeft praktische bergruimte en in de woonkamer vindt u de trapopgang naar de eerste verdieping.
In de woonkamer is voldoende ruimte voor een gezellige zithoek.
Keuken:
De keuken is royaal opgezet en helemaal compleet. U kookt hier op een 4-pits inductiekookplaat met een afzuigkap, er is een koel-/vriescombinatie, vaatwasmachine en een oven. Alles wat u nodig heeft, zit erin.
Grenzend aan de keuken is er plek voor een grote eettafel. Ideaal voor lange avonden tafelen of voor een snelle kop koffie in de ochtend. Vanuit hier stapt u middels de schuifpui of middels de loopdeur zo de achtertuin in. Dat betekent veel licht in de ruimte en een directe verbinding met buiten.
Eerste verdieping:
De woning beschikt over vier slaapkamers, op de eerste verdieping treffen we er drie aan. Alle kamers hebben een uitstekende maatvoering en zijn voorzien van een laminaatvloer. Eén van de slaapkamers aan de achterzijde geeft u toegang tot het balkon. De slaapkamer aan de voorzijde beschikt over een vaste kastenwand en een elektrisch bedienbaar rolluik.
Badkamer:
De badkamer heeft een lichte kleurstelling en in deze ruimte profiteert u van een douchecabine, een wastafelmeubel met wastafel, een toilet, een toiletkast en een designradiator. Daarbij is de badkamer voorzien van vloerverwarming, dit zorgt voor extra comfort!
Tweede verdieping:
Via een vaste trap bereiken we de tweede verdieping en komen we eerst op de overloop. Op de overloop treft u de aansluiting van de witgoedapparatuur aan, de opstelling van de cv-ketel, een groot en een klein Velux dakraam en bergruimte achter knieschot aan beide zijden. Daarnaast is op deze verdieping de vierde slaapkamer te vinden. Deze kamer is royaal en beschikt over een dakkapel met een elektrisch bedienbaar rolluik, bergruimte achter knieschot en een wastafel.
Tuin:
Een fijne achtertuin dat is elke zomer opnieuw genieten. In deze tuin beginnen we de dag onder de veranda met een kopje koffie én de ochtendzon. Later op de dag verplaatsen we ons naar het terras nabij de woning, hier kunt u de rest van de dag goed vertoeven in de zon. De tuin is aangelegd met een combinatie van bestrating en beplanting. Verder is de tuin ook te bereiken middels een eigen achterom.
Voortuin:
In de voortuin bevindt zich een stenen berging, ideaal voor het stallen van uw fietsen en voor het opbergen van andere spullen. Verder is de voortuin netjes aangelegd met bestrating en diverse beplanting.
Woonomgeving:
De woning is gelegen een kindvriendelijke woonwijk. Voor de woning vindt u een speeltuin voor de kinderen. Daarnaast zijn in de buurt van de woning diverse parkeerplaatsen. Het centrum van Barneveld, de supermarkt, scholen en andere voorzieningen zijn op fietsafstand te bereiken.
Algemeen:
- Energielabel B
- 11 zonnepanelen
- Elektrisch bedienbaar uitvalscherm achterzijde
- Elektrisch bedienbaar rolluik voorzijde, slaapkamer voorzijde en slaapkamer 2e verdieping
- Vloerverwarming badkamer
In- en uitklappen
Meer lezen
Minder lezen
Hal:
Binnenkomen doet u in de hal, de plek waar u uw jas ophangt en uw schoenen uitdoet. In de hal zijn het toilet, de garderobe en de meterkast te vinden. Vanuit de hal stapt u direct de woonkamer in.
Woonkamer:
De woonkamer is een fijne, lichte ruimte met een eiken houten parketvloer en lichte wanden, een rustige basis. Aan de voorzijde vindt u een groot raampartij met een elektrisch bedienbaar rolluik, wat u extra privacy en comfort biedt. In de ruimte brengt de open haard extra sfeer én zorgt voor een fijne warmte in de wintermaanden. De vaste kastenwand geeft praktische bergruimte en in de woonkamer vindt u de trapopgang naar de eerste verdieping.
In de woonkamer is voldoende ruimte voor een gezellige zithoek.
Keuken:
De keuken is royaal opgezet en helemaal compleet. U kookt hier op een 4-pits inductiekookplaat met een afzuigkap, er is een koel-/vriescombinatie, vaatwasmachine en een oven. Alles wat u nodig heeft, zit erin.
Grenzend aan de keuken is er plek voor een grote eettafel. Ideaal voor lange avonden tafelen of voor een snelle kop koffie in de ochtend. Vanuit hier stapt u middels de schuifpui of middels de loopdeur zo de achtertuin in. Dat betekent veel licht in de ruimte en een directe verbinding met buiten.
Eerste verdieping:
De woning beschikt over vier slaapkamers, op de eerste verdieping treffen we er drie aan. Alle kamers hebben een uitstekende maatvoering en zijn voorzien van een laminaatvloer. Eén van de slaapkamers aan de achterzijde geeft u toegang tot het balkon. De slaapkamer aan de voorzijde beschikt over een vaste kastenwand en een elektrisch bedienbaar rolluik.
Badkamer:
De badkamer heeft een lichte kleurstelling en in deze ruimte profiteert u van een douchecabine, een wastafelmeubel met wastafel, een toilet, een toiletkast en een designradiator. Daarbij is de badkamer voorzien van vloerverwarming, dit zorgt voor extra comfort!
Tweede verdieping:
Via een vaste trap bereiken we de tweede verdieping en komen we eerst op de overloop. Op de overloop treft u de aansluiting van de witgoedapparatuur aan, de opstelling van de cv-ketel, een groot en een klein Velux dakraam en bergruimte achter knieschot aan beide zijden. Daarnaast is op deze verdieping de vierde slaapkamer te vinden. Deze kamer is royaal en beschikt over een dakkapel met een elektrisch bedienbaar rolluik, bergruimte achter knieschot en een wastafel.
Tuin:
Een fijne achtertuin dat is elke zomer opnieuw genieten. In deze tuin beginnen we de dag onder de veranda met een kopje koffie én de ochtendzon. Later op de dag verplaatsen we ons naar het terras nabij de woning, hier kunt u de rest van de dag goed vertoeven in de zon. De tuin is aangelegd met een combinatie van bestrating en beplanting. Verder is de tuin ook te bereiken middels een eigen achterom.
Voortuin:
In de voortuin bevindt zich een stenen berging, ideaal voor het stallen van uw fietsen en voor het opbergen van andere spullen. Verder is de voortuin netjes aangelegd met bestrating en diverse beplanting.
Woonomgeving:
De woning is gelegen een kindvriendelijke woonwijk. Voor de woning vindt u een speeltuin voor de kinderen. Daarnaast zijn in de buurt van de woning diverse parkeerplaatsen. Het centrum van Barneveld, de supermarkt, scholen en andere voorzieningen zijn op fietsafstand te bereiken.
Algemeen:
- Energielabel B
- 11 zonnepanelen
- Elektrisch bedienbaar uitvalscherm achterzijde
- Elektrisch bedienbaar rolluik voorzijde, slaapkamer voorzijde en slaapkamer 2e verdieping
- Vloerverwarming badkamer
Kenmerken
Overdracht
Bouw
Oppervlakten en inhoud
Indeling
Energie
Kadastrale gegevens
Buitenruimte
Parkeergelegenheid
Vraagprijs
€ 475.000 k.k
Status
Verkocht
Soort woonhuis
Eengezinswoning, eindwoning
Soort bouw
Bestaande bouw
Bouwjaar
1978
Soort dak
Pannen zadeldak
Gebruiksoppervlakten
Wonen
108 m²
Gebouwgebonden buitenruimte
3 m²
Externe bergruimte
7 m²
Perceel
159 m²
Inhoud
412 m²
Aantal badkamers
1 badkamer en 1 toilet
Badkamervoorzieningen
Toilet, douche, wastafel, wastafelmeubel en vloerverwarming
Aantal woonlagen
3 woonlagen
Voorzieningen
Rolluiken, buitenzonwering, schuifpui en dakraam
Energielabel
B
Isolatie
Dakisolatie, muurisolatie, vloerisolatie en dubbel glas
Verwarming
Cv ketel
Warm water
Cv ketel
Verwarming verbruik
Gas
Perceel
Barneveld E 2818
Oppervlakte
159 m²
Eigendomssituatie
Volle eigendom
Ligging
In woonwijk
Tuin
Achtertuin en voortuin
Achtertuin
55 m² (10,5 meter diep en 5,3 meter breed)
Ligging tuin
Gelegen op zuidwesten bereikbaar via achterom
Soort parkeergelegenheid
Openbaar parkeren
Vergelijkbaar aanbod
En, wat zijn uw uitdagingen of dromen? We helpen u graag actief.
Misschien kunt u niet de woning of het bedrijfspand vinden dat een kant-en-klaar antwoord is op uw vraag. Misschien bent u benieuwd hoe wij tegen uw wensen aankijken, met onze kennis van de lokale markt en ons grote netwerk van aanbieders en zoekers. Mogen we met u meedenken?