Verlaat 12
3861 AA Nijkerk
              A+
            
                  
  Omschrijving
  
    
  
        
                  
      Per direct beschikbaar! Deze winkelruimte van ca. 213 m² is gelegen in het hart van het historisch en levendige centrum van Nijkerk, met uitzicht op het plein. Dankzij de grote raampartijen aan de voorzijde profiteert de winkel van veel daglicht en een goede zichtbaarheid, waardoor voorbijgangers niet om de etalage heen kunnen! De winkelruimte is zeer recent gerenoveerd en daarom voorzien van vele (duurzame) gemakken: pantry, toiletten, airco units, vloerverwarming, LED-verlichting en een systeemplafond. Dit zorgt voor een energielabel A+ wat resulteert in een lage energierekening. De stad Nijkerk kenmerkt zich door charmante, gezellige straatjes met een karakteristieke uitstraling, waar een mix van diverse winkels, horecagelegenheden en markten samen zorgen voor een unieke beleving.
Ligging
In de nabije omgeving is voldoende parkeergelegenheid aanwezig, zoals parkeergarage Wheemplein en Gasthuisstraat. Daarnaast zijn er goede laad- en losmogelijkheden bij de winkelruimte. De op- en afritten van de snelweg A28 (Amersfoort - Harderwijk) zijn binnen 10 minuten bereikbaar en op ca. 3,5 kilometer gelegen van het centrum van Nijkerk.
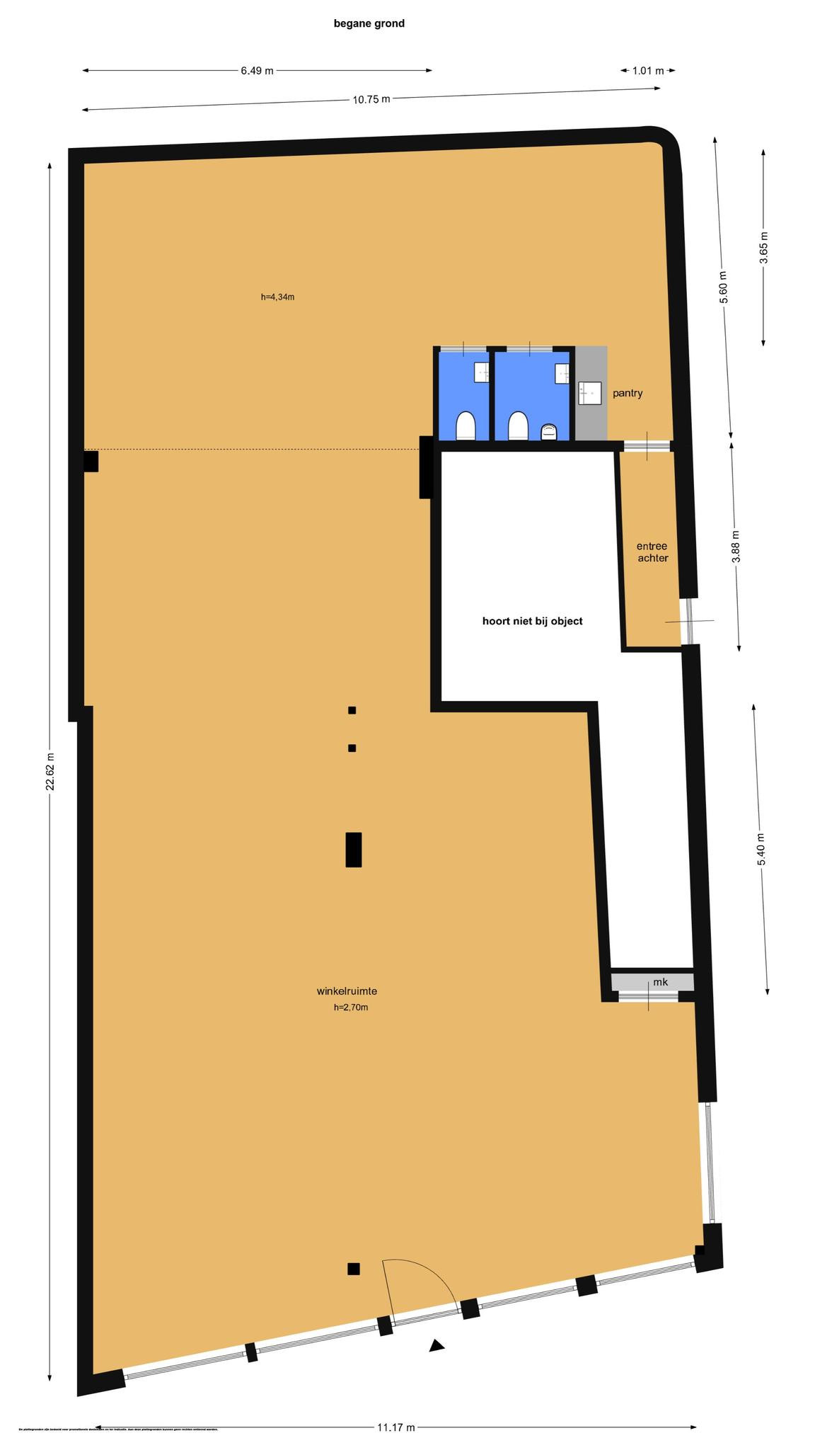
Indeling
Toegang naar de winkelruimte via voordeur en zij ingang. De winkelruimte beschikt over twee separaat toiletten en één urinoir. De winkelruimte heeft aan de achterzijde een hoger plafond, wat ideaal kan zijn voor een magazijnruimte.
Vloeroppervlakte
Ca. 213m²
Voorzieningen
• Twee separate toiletten en een urinoir
• Pantry incl. boiler en vaatwasser
• Vloerverwarming
• Elektra
• LED-verlichting
• Systeemplafond
• 5 airco's voor verwarming en verkoeling
• Eigen entree aan voor- en zijkant
Algemeen
Bouwjaar 1960 | Doordat het pand gerenoveerd is zal een energielabel A+ haalbaar zijn en zal deze (of hoger) z.s.m. worden afgegeven.
Bestemming
Enkelbestemming Centrum
Huurperiode
In overleg.
Huurbetaling
Per maand/kwartaal vooruit.
Huurprijsaanpassing
Jaarlijks, op basis van de wijziging van het maandprijs-indexcijfer volgens de consumentenprijsindex (CPI) reeks CPI-Alle Huishoudens (2015=100), gepubliceerd door het Centraal Bureau voor de Statistiek (CBS).
Zekerheidsstelling
Bankgarantie of waarborgsom ter grootte van drie maanden huur inclusief servicekosten en de wettelijk verschuldigde omzetbelasting.
Overige condities
Huurovereenkomst op basis van het standaardmodel van de Raad voor Onroerende Zaken (ROZ), model januari 2015, zoals gehanteerd door de NVM. De verhuur geschiedt onder voorbehoud van goedkeuring door verhuurder.
Aanvaarding
In overleg.
    
      In- en uitklappen
      
      Meer lezen
      
      Minder lezen
    
  Ligging
In de nabije omgeving is voldoende parkeergelegenheid aanwezig, zoals parkeergarage Wheemplein en Gasthuisstraat. Daarnaast zijn er goede laad- en losmogelijkheden bij de winkelruimte. De op- en afritten van de snelweg A28 (Amersfoort - Harderwijk) zijn binnen 10 minuten bereikbaar en op ca. 3,5 kilometer gelegen van het centrum van Nijkerk.
Indeling
Toegang naar de winkelruimte via voordeur en zij ingang. De winkelruimte beschikt over twee separaat toiletten en één urinoir. De winkelruimte heeft aan de achterzijde een hoger plafond, wat ideaal kan zijn voor een magazijnruimte.
Vloeroppervlakte
Ca. 213m²
Voorzieningen
• Twee separate toiletten en een urinoir
• Pantry incl. boiler en vaatwasser
• Vloerverwarming
• Elektra
• LED-verlichting
• Systeemplafond
• 5 airco's voor verwarming en verkoeling
• Eigen entree aan voor- en zijkant
Algemeen
Bouwjaar 1960 | Doordat het pand gerenoveerd is zal een energielabel A+ haalbaar zijn en zal deze (of hoger) z.s.m. worden afgegeven.
Bestemming
Enkelbestemming Centrum
Huurperiode
In overleg.
Huurbetaling
Per maand/kwartaal vooruit.
Huurprijsaanpassing
Jaarlijks, op basis van de wijziging van het maandprijs-indexcijfer volgens de consumentenprijsindex (CPI) reeks CPI-Alle Huishoudens (2015=100), gepubliceerd door het Centraal Bureau voor de Statistiek (CBS).
Zekerheidsstelling
Bankgarantie of waarborgsom ter grootte van drie maanden huur inclusief servicekosten en de wettelijk verschuldigde omzetbelasting.
Overige condities
Huurovereenkomst op basis van het standaardmodel van de Raad voor Onroerende Zaken (ROZ), model januari 2015, zoals gehanteerd door de NVM. De verhuur geschiedt onder voorbehoud van goedkeuring door verhuurder.
Aanvaarding
In overleg.
            Kenmerken
                          Overdracht
            
        
          
      
                
        
          
      
      
                          Bouw
            
        
          
      
                
        
          
      
                
        
          
      
      
                          Winkel
            
        
          
      
                
        
          
      
                
        
          
      
                
        
          
      
                
        
          
      
                
        
          
      
      
                          Energie
            
        
          
      
      
                          Omgeving
            
        
          
      
                
        
          
      
      
                      
              
            Vraagprijs
          
          
            
                                                € 150 m² / jaar
                                          
          
        
            Status
          
          
            
                                                Verhuurd
                                          
          
        
            Hoofdfunctie
          
          
            
                                                Winkelruimte
                                          
          
        
            Soort bouw
          
          
            
                                                Bestaande bouw
                                          
          
        
            Bouwjaar
          
          
            
                                                1960
                                          
          
        
            Winkel oppervlakte
          
          
            
                                                215 m²
                                          
          
        
            Units vanaf
          
          
            
                                                215
                                          
          
        
            Bijdrage winkeliersvereniging
          
          
            
                                                Ja
                                          
          
        
            Winkeldetailhandel
          
          
            
                                                Ja
                                          
          
        
            Showroom
          
          
            
                                                Ja
                                          
          
        
            Winkelwelstandsklasse
          
          
            
                                                A1
                                          
          
        
            Energielabel
          
          
            
                                                A+
                                          
          
        
            Ligging
          
          
            
                                                Winkelgebied stadscentrum
                                          
          
        
            Bereikbaarheid
          
          
            
                                                Snelweg op 5000 m of meer, treinstation op 500 m tot 1000 m en bushalte op minder dan 500 m
                                          
          
         
        Vergelijkbaar aanbod
                                En, wat zijn uw uitdagingen of dromen? We helpen u graag actief.
                                          Misschien kunt u niet de woning of het bedrijfspand vinden dat een kant-en-klaar antwoord is op uw vraag. Misschien bent u benieuwd hoe wij tegen uw wensen aankijken, met onze kennis van de lokale markt en ons grote netwerk van aanbieders en zoekers. Mogen we met u meedenken? 
                                
                  
       
               
   
   
   
   
   
   
   
   
   
   
   
   
   
   
   
   
   
   
   
   
   
   
   
   
   
   
   
   
   
   
   
   
   
   
   
   
  