Raadhuisplein 7
3771 ER Barneveld
43 m²
C
Omschrijving
Bij deze appartementen profiteert u werkelijk van alle voorzieningen om de hoek, hoe praktisch! Het complex is
gelegen midden in het centrum van Barneveld en bestaat uit acht appartementen, vier op de eerste en vier op de
tweede verdieping.
Indeling van de appartementen:
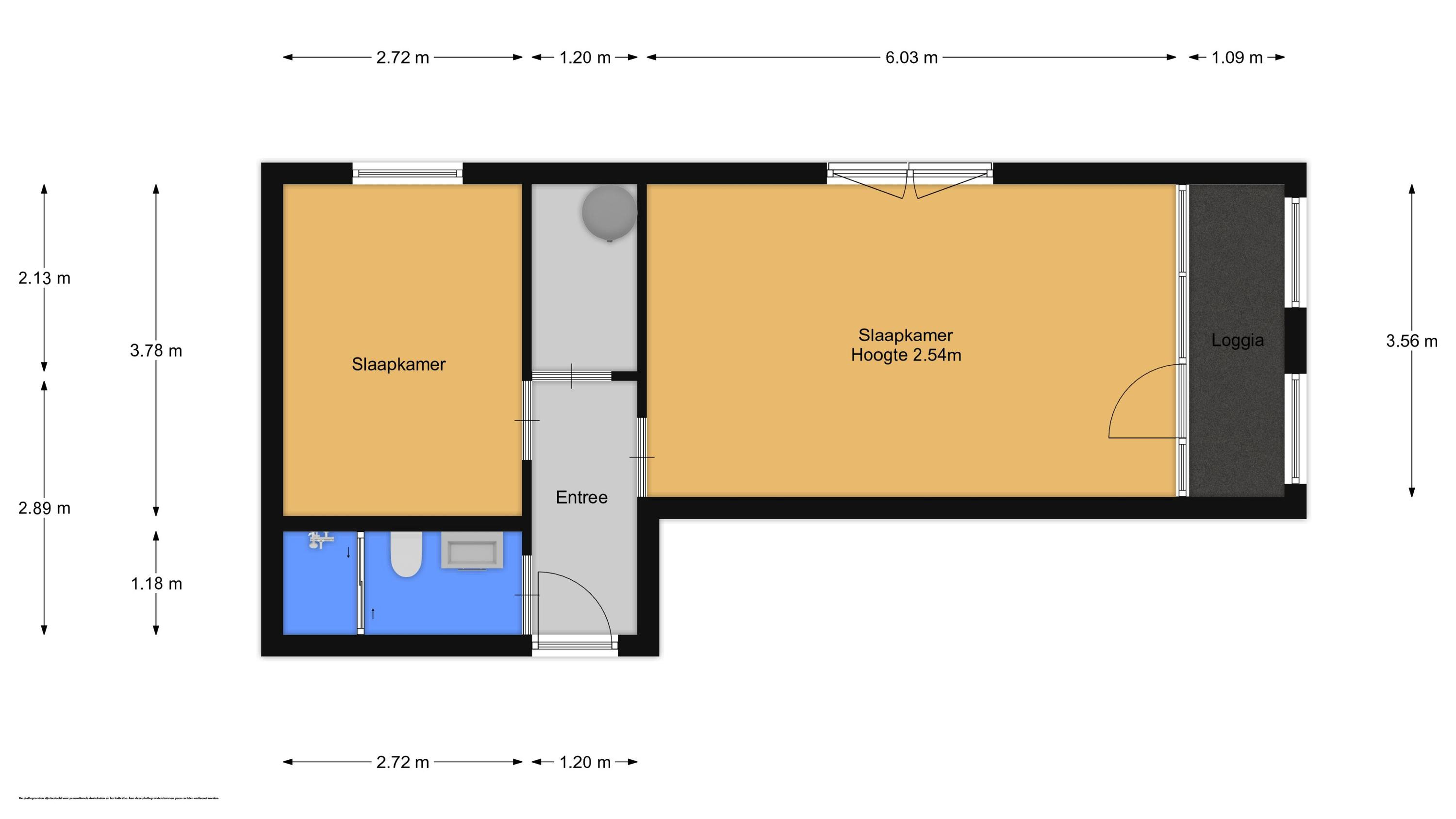
Vanuit de centrale hal stapt u de appartementen binnen in de hal. Vanuit de hal krijgt u toegang tot alle vertrekken van de appartementen. Het leefgedeelte geeft u plek voor het plaatsen van een zithoek. Door de grote raampartijen komt er veel daglicht naar binnen. Tevens bereikt u vanuit hier de loggia. Een beschutte buitenruimte waar u de dag kunt beginnen met een kopje koffie of juist 's avonds nog even kunt genieten van de buitenlucht.
De wanden en vloeren zijn nog naar eigen smaak af te werken. U kiest zelf de stijl, kleuren en materialen. Zo maakt u er echt uw eigen thuis van. Een unieke kans voor u die op zoek is naar comfortabel wonen met oog voor de toekomst!
Verder treft u in het appartement één slaapkamer aan en een aparte technische ruimte met de opstelling van de
ventilatiewarmtepomp en de aansluiting voor de witgoedapparatuur. Het appartement is afgewerkt met een
moderne badkamer. In de badkamer profiteert u van een douchecabine, een toilet, een wastafelmeubel met
wastafel en een spiegel met verlichting. Compleet en voorzien van alle gemakken!
Centrale hal:
In de centrale hal van het appartementencomplex bevindt zich de brievenbussen, de lifinstallatie en het trappenhuis. Op de begane grond bevindt zich ook een royale fietsenberging, hier kunnen alle bewoners hun fietsen plaatsen.
Woonomgeving:
Zodra u de deur achter u dichttrekt, vindt u om de hoek het gezellige centrum van Barneveld. U kunt gelijk de gezelligheid opzoeken of uw boodschappen doen, ideaal! Ook de andere voorzieningen zoals het station en de uitvalswegen zijn op korte afstand te vinden.
Algemeen:
- Energielabel C
- Verwarming middels elektrische verwarming en warm water middels ventilatiewarmtepomp
- De servicekosten zullen ongeveer € 173,62 per maand bedragen
- De koper dient gebruik te maken van de startersvrijstelling
- De overdracht zal bij Notariaat Ridderhof & Stelwagen in Vaassen plaatsvinden
- Het bruto jaarinkomen mag niet meer dan € 70.000,- bedragen
- Er geldt een anti-speculatiebeding in de eerste 10 jaar van bewoning. Indien u binnen 10 jaar de woning verkoopt, moet u een deel van de eventuele meeropbrengst terugbetalen. De exacte bepalingen hierover staan in de leveringsakte;
- Er geldt voor deze woningen een zelfbewoningsplicht in de eerste 10 jaar. De koper is verplicht het registergoed daadwerkelijk als hoofdbewoner zelf te bewonen, of door eerstegraads bloed- of aanverwanten te laten bewonen voor de minimale duur van 10 jaar, te rekenen vanaf de datum waarop de bewoner van het betreffende registergoed is ingeschreven in de Basisregistratie Personen.
In- en uitklappen
Meer lezen
Minder lezen
gelegen midden in het centrum van Barneveld en bestaat uit acht appartementen, vier op de eerste en vier op de
tweede verdieping.
Indeling van de appartementen:
Vanuit de centrale hal stapt u de appartementen binnen in de hal. Vanuit de hal krijgt u toegang tot alle vertrekken van de appartementen. Het leefgedeelte geeft u plek voor het plaatsen van een zithoek. Door de grote raampartijen komt er veel daglicht naar binnen. Tevens bereikt u vanuit hier de loggia. Een beschutte buitenruimte waar u de dag kunt beginnen met een kopje koffie of juist 's avonds nog even kunt genieten van de buitenlucht.
De wanden en vloeren zijn nog naar eigen smaak af te werken. U kiest zelf de stijl, kleuren en materialen. Zo maakt u er echt uw eigen thuis van. Een unieke kans voor u die op zoek is naar comfortabel wonen met oog voor de toekomst!
Verder treft u in het appartement één slaapkamer aan en een aparte technische ruimte met de opstelling van de
ventilatiewarmtepomp en de aansluiting voor de witgoedapparatuur. Het appartement is afgewerkt met een
moderne badkamer. In de badkamer profiteert u van een douchecabine, een toilet, een wastafelmeubel met
wastafel en een spiegel met verlichting. Compleet en voorzien van alle gemakken!
Centrale hal:
In de centrale hal van het appartementencomplex bevindt zich de brievenbussen, de lifinstallatie en het trappenhuis. Op de begane grond bevindt zich ook een royale fietsenberging, hier kunnen alle bewoners hun fietsen plaatsen.
Woonomgeving:
Zodra u de deur achter u dichttrekt, vindt u om de hoek het gezellige centrum van Barneveld. U kunt gelijk de gezelligheid opzoeken of uw boodschappen doen, ideaal! Ook de andere voorzieningen zoals het station en de uitvalswegen zijn op korte afstand te vinden.
Algemeen:
- Energielabel C
- Verwarming middels elektrische verwarming en warm water middels ventilatiewarmtepomp
- De servicekosten zullen ongeveer € 173,62 per maand bedragen
- De koper dient gebruik te maken van de startersvrijstelling
- De overdracht zal bij Notariaat Ridderhof & Stelwagen in Vaassen plaatsvinden
- Het bruto jaarinkomen mag niet meer dan € 70.000,- bedragen
- Er geldt een anti-speculatiebeding in de eerste 10 jaar van bewoning. Indien u binnen 10 jaar de woning verkoopt, moet u een deel van de eventuele meeropbrengst terugbetalen. De exacte bepalingen hierover staan in de leveringsakte;
- Er geldt voor deze woningen een zelfbewoningsplicht in de eerste 10 jaar. De koper is verplicht het registergoed daadwerkelijk als hoofdbewoner zelf te bewonen, of door eerstegraads bloed- of aanverwanten te laten bewonen voor de minimale duur van 10 jaar, te rekenen vanaf de datum waarop de bewoner van het betreffende registergoed is ingeschreven in de Basisregistratie Personen.
Kenmerken
Overdracht
Bouw
Oppervlakten en inhoud
Indeling
Energie
Kadastrale gegevens
Buitenruimte
Parkeergelegenheid
Vraagprijs
€ 320.000 v.o.n
Status
Beschikbaar
Aanvaarding
In overleg
Bijdrage VvE
€ 174 per maand
Soort bouw
Bestaande bouw
Bouwjaar
1976
Gebruiksoppervlakten
Wonen
43 m²
Gebouwgebonden buitenruimte
4 m²
Inhoud
137 m²
Aantal badkamers
1 badkamer
Badkamervoorzieningen
Toilet, douche, wastafel en wastafelmeubel
Aantal woonlagen
1 woonlagen
Energielabel
C
Isolatie
Dakisolatie, muurisolatie, vloerisolatie en dubbel glas
Verwarming
Elektrische verwarming
Perceel
Barneveld D 2217
Eigendomssituatie
Volle eigendom
Ligging
In woonwijk
Tuin
Geen tuin
Soort parkeergelegenheid
Openbaar parkeren en parkeervergunningen
Vergelijkbaar aanbod
En, wat zijn uw uitdagingen of dromen? We helpen u graag actief.
Misschien kunt u niet de woning of het bedrijfspand vinden dat een kant-en-klaar antwoord is op uw vraag. Misschien bent u benieuwd hoe wij tegen uw wensen aankijken, met onze kennis van de lokale markt en ons grote netwerk van aanbieders en zoekers. Mogen we met u meedenken?