Anthonie Fokkerstraat 57 – M
3772 MP Barneveld
220 m²
234 m²
Omschrijving
Hoekunit te koop! Een modern bedrijfsobject met een totale oppervlakte van circa 220 m² mét extra buitenterrein.
De bedrijfsruimte heeft een vrije hoogte van ca. 3,5 meter en is voorzien van twee overheaddeuren aan de voor- en zijkant, wat het pand goed toegankelijk maakt. Op de verdieping ligt een kantoorruimte met veel daglicht en uitzicht over de Anthonie Fokkerstraat. Verder vind je hier een keuken, toilet, aansluitingen voor witgoed en extra bergruimte.
Verwarming en koeling gaan via een airco-unit en het pand beschikt over 36 zonnepanelen.
Naast het pand ligt een afsluitbare overkapping, handig voor opslag of als extra buitenruimte.
Een pand dat werkt in combinatie met een actieve ondernemer!
Ligging:
Het pand ligt aan de oostzijde van Barneveld, op bedrijventerrein De Briellaerd.
De op- en afritten van de A30 zijn binnen enkele minuten bereikbaar, waardoor ook een aansluiting met de A1 via de A30 snel gemaakt is. Vanaf het centrum van Barneveld is de locatie circa 5 minuten rijden. Gelet op deze ligging is het goed bereikbaar voor bedrijven die verkeer en logistiek efficiënt willen regelen.
Indeling:
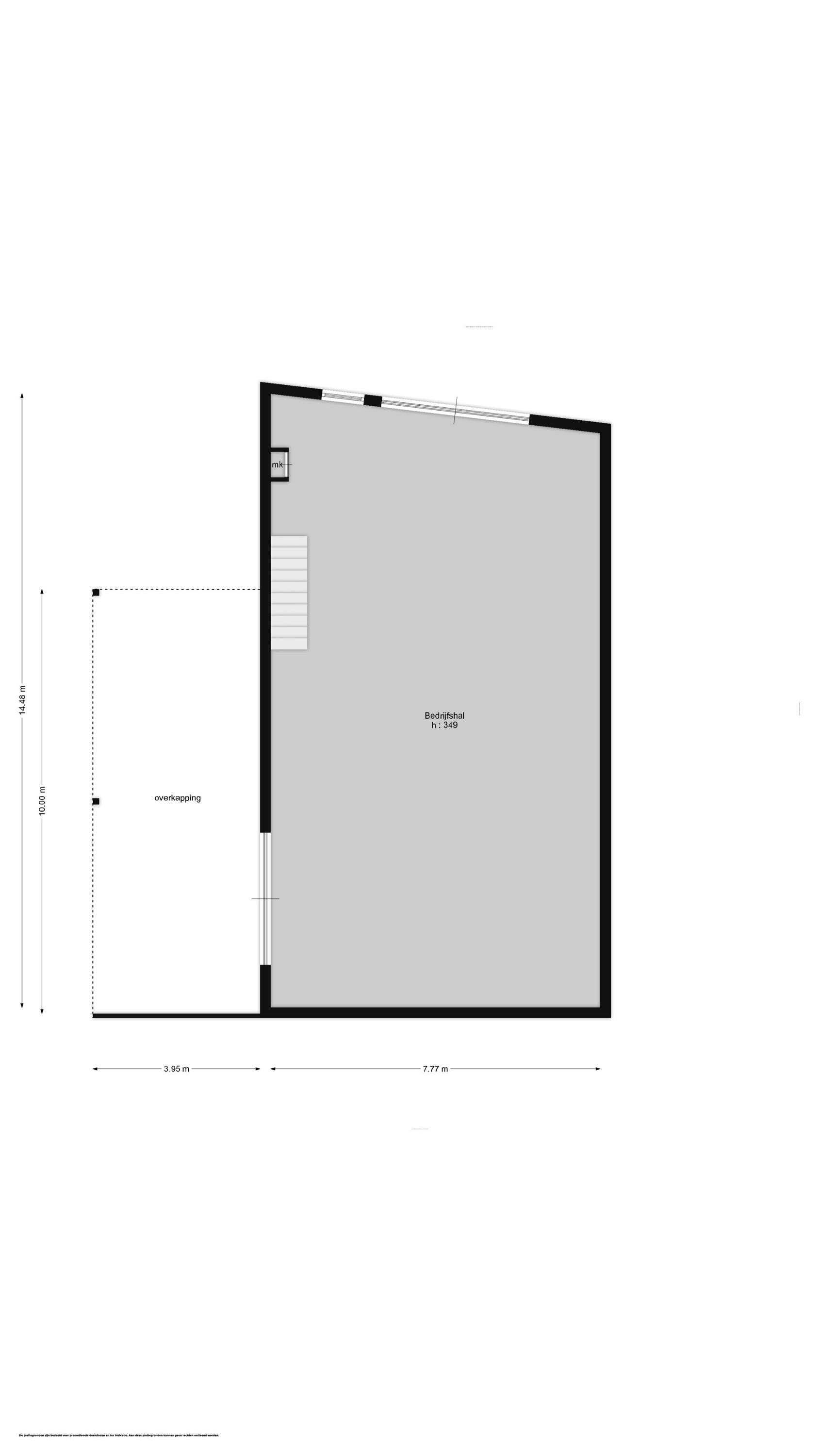
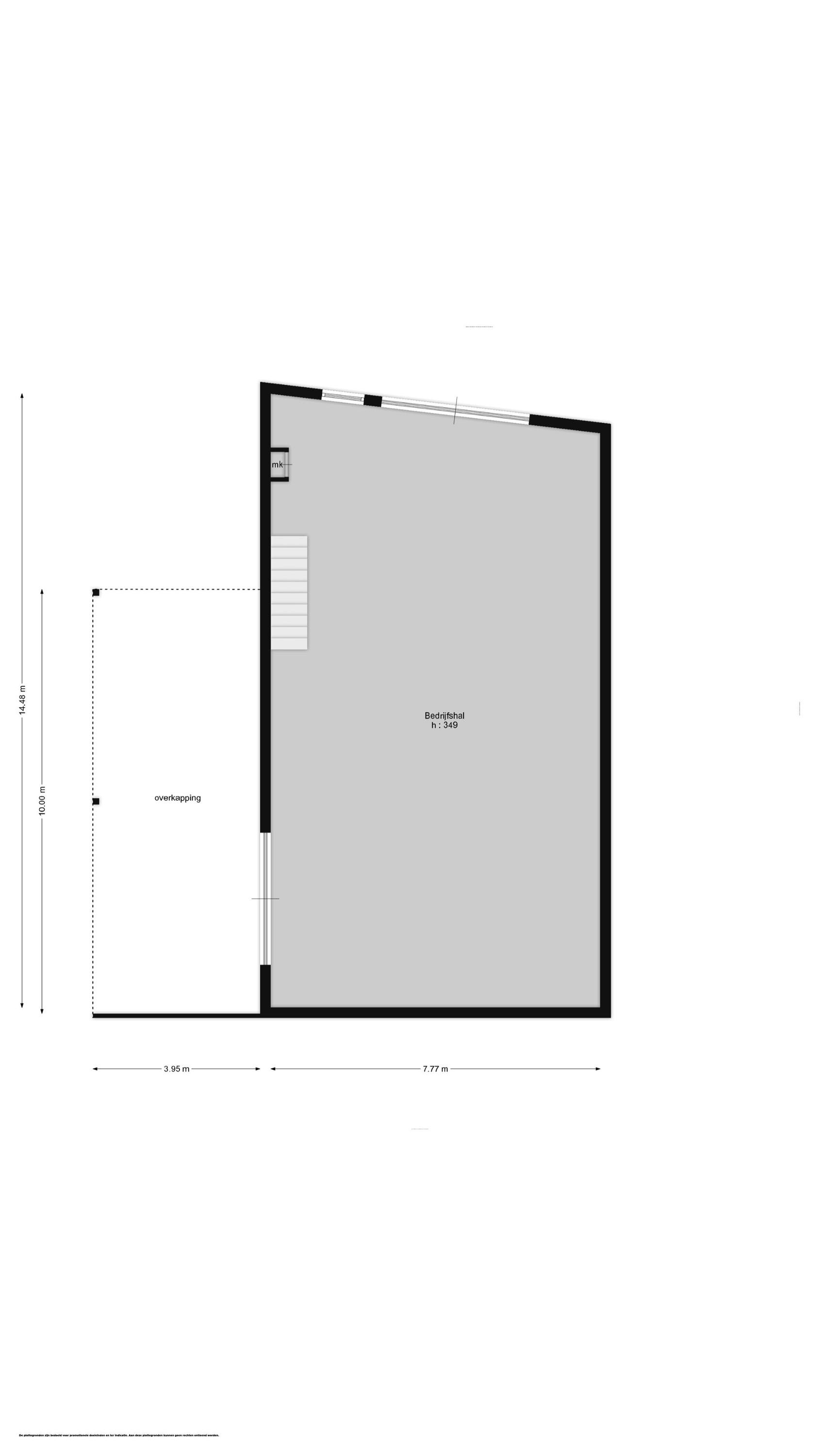
Het pand bestaat uit twee bouwlagen. Op de begane grond is een bedrijfsruimte met een hoogte van 3,5 meter en daarnaast een overkapping van circa 10 meter diep (eventueel uit te breiden). Op de verdieping vind je een kantoorruimte aan de voorzijde en daarachter een berging/magazijn, keuken en toilet.
Vloeroppervlakte:
Begane grond: ca. 110 m²
Verdieping: ca. 110 m²
Voorzieningen:
• Toilet
• Pantry met koelkast met koel/vriescombinatie
• Draai-/kiepramen
• Witgoedaansluitingen op de verdieping
• Airco units t.b.v. verwarming en verkoeling
• LED-verlichting
• 36 zonnepanelen
• Vloerverwarming op de begane grond (niet aangesloten)
• Twee overheaddeuren
• Vrije hoogte begane grond ca. 3,5 meter
• Buitenverlichting
Een aantal aanwezige voorzieningen zoals: camera installatie, koelcel met installatie of werkbank(en) zijn, in overleg, ter overname.
Algemeen:
• Bouwjaar 2020
• Servicekosten: € 110,- per maand
• Extra buitenterrein in overleg te huur
Bestemming:
Enkelbestemming Bedrijventerrein, bedrijf van categorie 2 tot en met categorie 3.1
Overige condities:
De koper betaalt de overdrachtsbelasting en notariskosten voor de eigendomsoverdracht.
Aanvaarding:
In overleg.
In- en uitklappen
Meer lezen
Minder lezen
De bedrijfsruimte heeft een vrije hoogte van ca. 3,5 meter en is voorzien van twee overheaddeuren aan de voor- en zijkant, wat het pand goed toegankelijk maakt. Op de verdieping ligt een kantoorruimte met veel daglicht en uitzicht over de Anthonie Fokkerstraat. Verder vind je hier een keuken, toilet, aansluitingen voor witgoed en extra bergruimte.
Verwarming en koeling gaan via een airco-unit en het pand beschikt over 36 zonnepanelen.
Naast het pand ligt een afsluitbare overkapping, handig voor opslag of als extra buitenruimte.
Een pand dat werkt in combinatie met een actieve ondernemer!
Ligging:
Het pand ligt aan de oostzijde van Barneveld, op bedrijventerrein De Briellaerd.
De op- en afritten van de A30 zijn binnen enkele minuten bereikbaar, waardoor ook een aansluiting met de A1 via de A30 snel gemaakt is. Vanaf het centrum van Barneveld is de locatie circa 5 minuten rijden. Gelet op deze ligging is het goed bereikbaar voor bedrijven die verkeer en logistiek efficiënt willen regelen.
Indeling:
Het pand bestaat uit twee bouwlagen. Op de begane grond is een bedrijfsruimte met een hoogte van 3,5 meter en daarnaast een overkapping van circa 10 meter diep (eventueel uit te breiden). Op de verdieping vind je een kantoorruimte aan de voorzijde en daarachter een berging/magazijn, keuken en toilet.
Vloeroppervlakte:
Begane grond: ca. 110 m²
Verdieping: ca. 110 m²
Voorzieningen:
• Toilet
• Pantry met koelkast met koel/vriescombinatie
• Draai-/kiepramen
• Witgoedaansluitingen op de verdieping
• Airco units t.b.v. verwarming en verkoeling
• LED-verlichting
• 36 zonnepanelen
• Vloerverwarming op de begane grond (niet aangesloten)
• Twee overheaddeuren
• Vrije hoogte begane grond ca. 3,5 meter
• Buitenverlichting
Een aantal aanwezige voorzieningen zoals: camera installatie, koelcel met installatie of werkbank(en) zijn, in overleg, ter overname.
Algemeen:
• Bouwjaar 2020
• Servicekosten: € 110,- per maand
• Extra buitenterrein in overleg te huur
Bestemming:
Enkelbestemming Bedrijventerrein, bedrijf van categorie 2 tot en met categorie 3.1
Overige condities:
De koper betaalt de overdrachtsbelasting en notariskosten voor de eigendomsoverdracht.
Aanvaarding:
In overleg.
Kenmerken
Overdracht
Bouw
Oppervlakten
Indeling
Energie
Omgeving
Vraagprijs
€ 499.000 k.k
Status
Verkocht
Hoofdfunctie
Bedrijfsruimte
Soort bouw
Bestaande bouw
Bouwjaar
2020
Oppervlakte
220 m²
Bedrijfshal oppervlak
220 m²
Perceel
234 m²
Voorzieningen bedrijfshal
Overheaddeuren, betonvloer, toilet en pantry
Luchtbehandeling bedrijfshal
Airco
Energielabel
Niet beschikbaar
Ligging
Bedrijventerrein
Vergelijkbaar aanbod
En, wat zijn uw uitdagingen of dromen? We helpen u graag actief.
Misschien kunt u niet de woning of het bedrijfspand vinden dat een kant-en-klaar antwoord is op uw vraag. Misschien bent u benieuwd hoe wij tegen uw wensen aankijken, met onze kennis van de lokale markt en ons grote netwerk van aanbieders en zoekers. Mogen we met u meedenken?