Puurveenseweg 33
3774 PH Kootwijkerbroek
435 m²
1.257 m²
A+++++
Omschrijving
Een ideale combinatie om te wonen én te werken staat te koop. Twee speerpunten die eruit springen zijn de hoge mate van duurzaamheid en de architectuur waaronder dit is gebouwd. Voor u op een rij: 108 zonnepanelen, 11 parkeerplaatsen, ruim buitenterrein, overheaddeur, praktische indeling, aardwarmtepomp en het hoogst haalbare energielabel! Het bedrijfspand is voor diverse doeleinden geschikt, mede door de ruime vide en de flexibele indeling. Nóg een voordeel: de ligging van het object is ideaal. De op- en afritten van de A1 zijn binnen enkele minuten te bereiken en de openbare voorzieningen zijn op korte afstand gelegen. Dat betekent de ideale m² voor uw business. Maar óók de rust en de ruimte om heerlijk te wonen.
Ligging
Het object is gelegen op een gunstige locatie, mede doordat het grenst aan een kindvriendelijke woonwijk; De Wiek. Verschillende toonaangevende bedrijven zijn gevestigd op het bedrijventerrein rondom Puurveen.
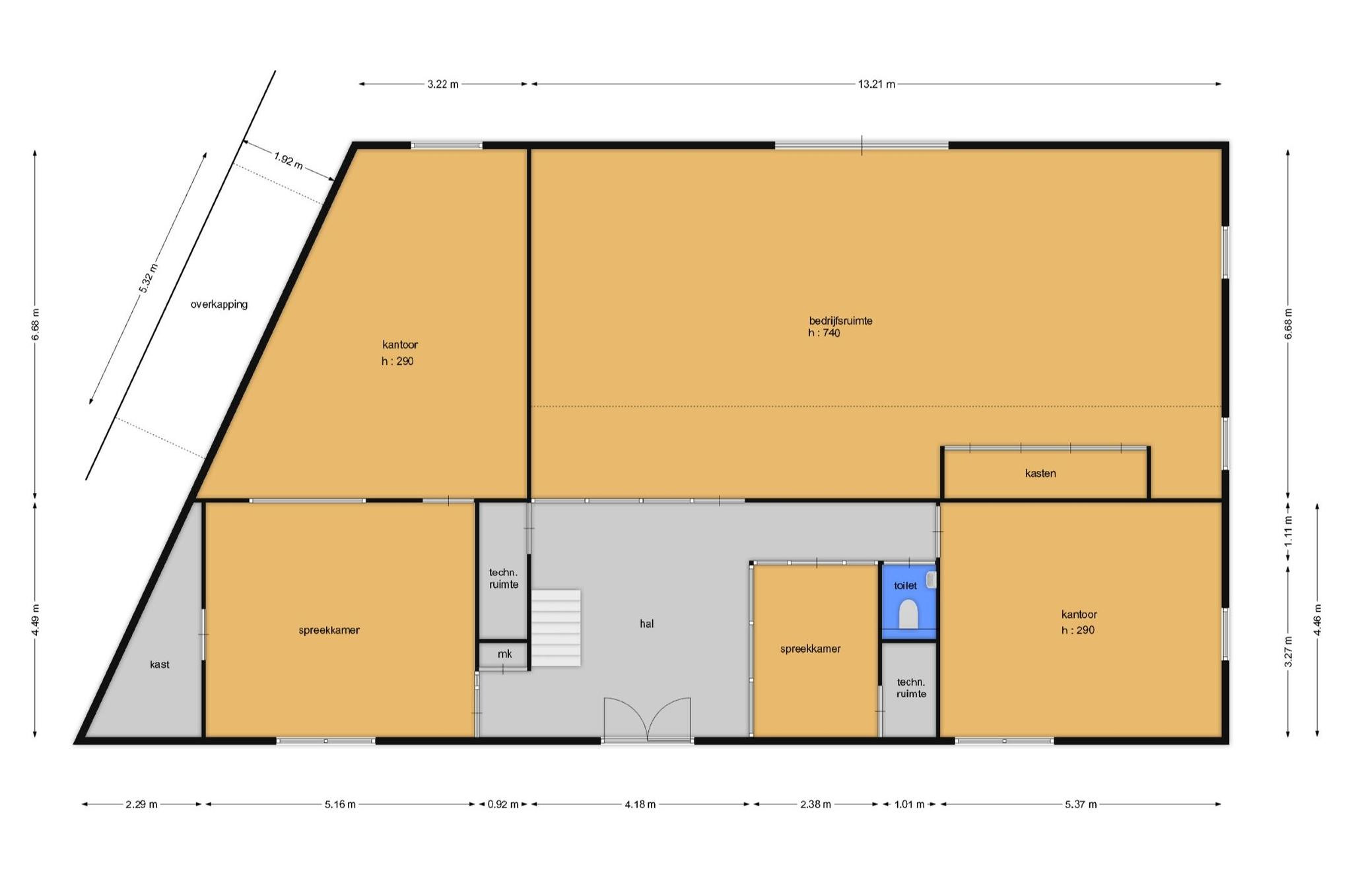
Indeling bedrijfspand
Royale hoofdentree met toegang tot een toilet, technische ruimte en een kantoor- en spreekkamer. Via de hoofdentree is er tevens toegang tot de bedrijfsruimte. Middels een fraaie trapopgang bereikt u de 1e verdieping. Deze verdieping beschikt over een zeer ruime kantoor-/studioruimte, een toilet, een spreekkamer en een ruime kantine. Daarnaast is er een fantastische daglichttoetreding door de grote raampartijen.
Vloeroppervlakte
Begane grond: 216 m²
Eerste verdieping: 131 m²
Voorzieningen
- Akoestische panelen
- Betonvloer
- Aardwarmtepomp
- Handmatig bedienbare overheaddeur met loopdeur
- UTP-aansluitingen
- LED-verlichting
- Keuken incl. boiler, koelkast, vaatwasser en oven
- Automatisch bedienbare zonwering
- Alarminstallatie
- 11 parkeerplaatsen (incl. 1 laadpaal)
- 108 zonnepanelen
Woning
U profiteert binnenshuis van een perfecte afwerking, woonkeuken, vijf slaapkamers, praktische bijkeuken én vloerverwarming-/koeling op de begane grond en de eerste verdieping. Buitenshuis geniet u elke dag opnieuw van de keurig aangelegde achtertuin. Heerlijk op het terras of tot in de late uurtjes in de veranda. Het bedrijfspand en de woning zijn voorzien van een aardwarmtepomp en in totaal 108 zonnepanelen wat resulteert in een uitzonderlijk hoog energielabel. En dus een lage energierekening. Achter in de tuin staat een prachtige veranda/tuinkamer, een echte blikvanger. De veranda is voorzien van softclose, geïsoleerde glazen schuifdeuren, waardoor u hier in alle seizoenen kunt genieten van het buitenleven. In de zomermaanden kunt u de schuifdeuren openen, zodat de veranda en de tuin naadloos in elkaar overlopen.
Een unieke woon-/werklocatie op een schitterende plek. Stijlvol en onder architectuur gebouwd met een hoge mate van duurzaamheid en afwerking. Een (woon)locatie met veel privacy en woongenot grenzend aan een jonge woonwijk. Het bedrijfspand (ingericht als kantoor/studio) is voor meerdere (bedrijfs)doeleinden geschikt.
Algemeen
Bouwjaar bedrijfspand 2010, woning 2015 | Energielabel bedrijfspand A+++++, woning A+++
Bestemming
Enkelbestemming Bedrijf - 1
Overige condities
De bedrijfswoning en het bedrijfspand worden uitsluitend samen te koop aangeboden en zijn niet afzonderlijk te koop.
Aanvaarding
In overleg.
In- en uitklappen
Meer lezen
Minder lezen
Ligging
Het object is gelegen op een gunstige locatie, mede doordat het grenst aan een kindvriendelijke woonwijk; De Wiek. Verschillende toonaangevende bedrijven zijn gevestigd op het bedrijventerrein rondom Puurveen.
Indeling bedrijfspand
Royale hoofdentree met toegang tot een toilet, technische ruimte en een kantoor- en spreekkamer. Via de hoofdentree is er tevens toegang tot de bedrijfsruimte. Middels een fraaie trapopgang bereikt u de 1e verdieping. Deze verdieping beschikt over een zeer ruime kantoor-/studioruimte, een toilet, een spreekkamer en een ruime kantine. Daarnaast is er een fantastische daglichttoetreding door de grote raampartijen.
Vloeroppervlakte
Begane grond: 216 m²
Eerste verdieping: 131 m²
Voorzieningen
- Akoestische panelen
- Betonvloer
- Aardwarmtepomp
- Handmatig bedienbare overheaddeur met loopdeur
- UTP-aansluitingen
- LED-verlichting
- Keuken incl. boiler, koelkast, vaatwasser en oven
- Automatisch bedienbare zonwering
- Alarminstallatie
- 11 parkeerplaatsen (incl. 1 laadpaal)
- 108 zonnepanelen
Woning
U profiteert binnenshuis van een perfecte afwerking, woonkeuken, vijf slaapkamers, praktische bijkeuken én vloerverwarming-/koeling op de begane grond en de eerste verdieping. Buitenshuis geniet u elke dag opnieuw van de keurig aangelegde achtertuin. Heerlijk op het terras of tot in de late uurtjes in de veranda. Het bedrijfspand en de woning zijn voorzien van een aardwarmtepomp en in totaal 108 zonnepanelen wat resulteert in een uitzonderlijk hoog energielabel. En dus een lage energierekening. Achter in de tuin staat een prachtige veranda/tuinkamer, een echte blikvanger. De veranda is voorzien van softclose, geïsoleerde glazen schuifdeuren, waardoor u hier in alle seizoenen kunt genieten van het buitenleven. In de zomermaanden kunt u de schuifdeuren openen, zodat de veranda en de tuin naadloos in elkaar overlopen.
Een unieke woon-/werklocatie op een schitterende plek. Stijlvol en onder architectuur gebouwd met een hoge mate van duurzaamheid en afwerking. Een (woon)locatie met veel privacy en woongenot grenzend aan een jonge woonwijk. Het bedrijfspand (ingericht als kantoor/studio) is voor meerdere (bedrijfs)doeleinden geschikt.
Algemeen
Bouwjaar bedrijfspand 2010, woning 2015 | Energielabel bedrijfspand A+++++, woning A+++
Bestemming
Enkelbestemming Bedrijf - 1
Overige condities
De bedrijfswoning en het bedrijfspand worden uitsluitend samen te koop aangeboden en zijn niet afzonderlijk te koop.
Aanvaarding
In overleg.
Kenmerken
Overdracht
Bouw
Oppervlakten
Indeling
Energie
Omgeving
Parkeergelegenheid
Vraagprijs
Prijs op aanvraag
Status
Verkocht
Hoofdfunctie
Kantoorruimte
Soort bouw
Bestaande bouw
Bouwjaar
2010
Oppervlakte
435 m²
Bedrijfshal oppervlak
88 m²
Kantoorruimte oppervlakte
347 m²
Vrije hoogte
7,4 m
Perceel
1.257 m²
Aantal bouwlagen
1 bouwlaag
Voorzieningen kantoorruimte
Toilet, pantry, verwarming en kamerindeling
Voorzieningen bedrijfshal
Overheaddeuren en betonvloer
Luchtbehandeling kantoorruimte
Mechanische ventilatie
Energielabel
A+++++
Ligging
Bedrijventerrein, in woonwijk en landelijk gebied
Bereikbaarheid
Snelweg op 5000 m of meer, treinstation op 5000 m of meer en bushalte op 500 m tot 1000 m
Parkeerplaatsen (niet overdekt)
11
Vergelijkbaar aanbod
En, wat zijn uw uitdagingen of dromen? We helpen u graag actief.
Misschien kunt u niet de woning of het bedrijfspand vinden dat een kant-en-klaar antwoord is op uw vraag. Misschien bent u benieuwd hoe wij tegen uw wensen aankijken, met onze kennis van de lokale markt en ons grote netwerk van aanbieders en zoekers. Mogen we met u meedenken?