Verlengde Parallelweg 4 – 07
3771 LP Barneveld
95 m²
Omschrijving
Deze kantoorruimte van circa 95 m² op de verdieping is tot in de puntjes afgewerkt en kan direct in gebruik worden genomen. De tegelvloer met vloerverwarming, het strakke systeemplafond met LED-verlichting en een airco-unit geven de ruimte een frisse uitstraling. De raampartijen zorgen voor daglicht en de elektrisch bedienbare jaloezieën zorgen voor werkcomfort. Een luxe keuken en een nette toiletruimte maken het dagelijks werken hier gemakkelijk. Het pand beschikt over een warmtepompinstallatie en zonnepanelen. Bij de bedrijfsunit zijn 3 parkeerplaatsen beschikbaar. De ligging op bedrijventerrein Harselaar in Barneveld is sterk: binnen twee kilometer zijn de A1 en A30 bereikbaar en het Transferium Barneveld Noord met trein en bus ligt op circa 300 meter lopen. Klaar om te starten op een locatie waar alles al staat te wachten?
Ligging
De kantoorruimte ligt op bedrijventerrein Harselaar in Barneveld, een strategische locatie vlak bij de op- en afritten van de A1 (Amersfoort–Apeldoorn) en de A30 richting Ede. Beide snelwegen zijn binnen 2 kilometer bereikbaar. Ook met het openbaar vervoer zit je goed: het Transferium Barneveld Noord met trein- en busverbindingen ligt op ongeveer ca. 300 meter loopafstand.
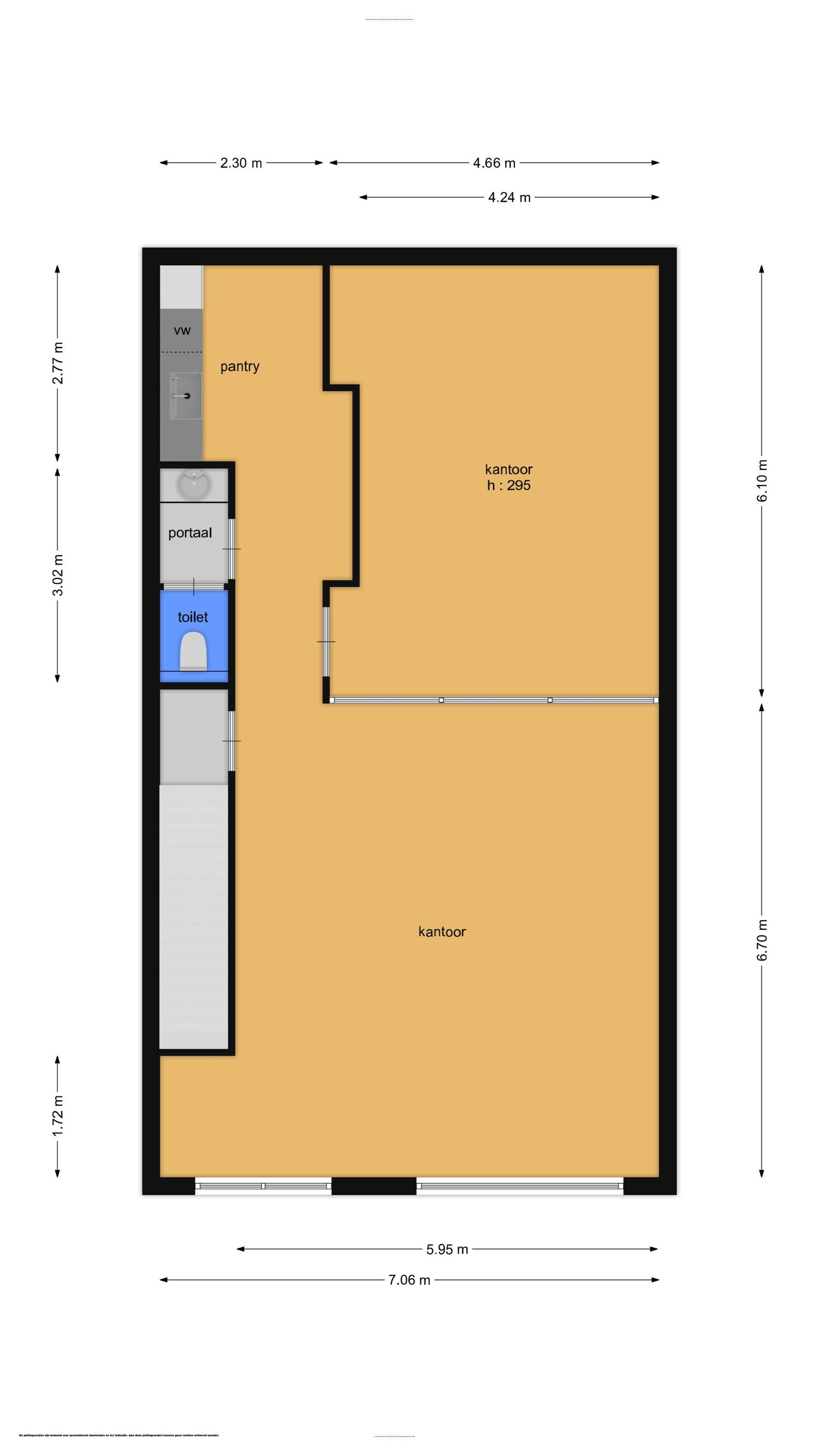
Indeling
De kantoorruimte heeft een open indeling met aan de voorzijde raampartijen. Aan de linkerkant ligt een pantry en een aparte toiletruimte. Rechts daarvan bevinden zich twee kantoor-/vergaderkamers, gescheiden door een tussenwand.
Vloeroppervlakte
Verdieping ca. 95 m²
Voorzieningen
• Warmtepomp
• Zonnepanelen
• Vloerverwarming op de verdieping
• Toilet met separaat wastafelmeubel en wastafel
• Luxe keuken met koelkast en vaatwasser
• Airco unit ten behoeve van verwarming en verkoeling
• Systeemplafond met LED-verlichting
• Elektrisch bedienbare jaloezieën
• Diverse elektrapunten
• Tegelvloer
• Raampartijen met veel daglichttoetreding
• Drie parkeerplaatsen
Algemeen
Bouwjaar 2023
Bestemming
Bestemd als Bedrijventerrein voor bedrijven van categorie 3.1 tot en met categorie 4.2.
Huurperiode
In overleg.
Huurbetaling
Per maand/kwartaal vooruit.
Huurprijsaanpassing
Jaarlijks, op basis van de wijziging van het maandprijs-indexcijfer volgens de consumentenprijsindex (CPI) reeks CPI-Alle Huishoudens (2015=100), gepubliceerd door het Centraal Bureau voor de Statistiek (CBS).
Zekerheidsstelling
Bankgarantie of waarborgsom ter grootte van 3 maanden huur inclusief servicekosten en de wettelijk verschuldigde omzetbelasting.
Overige condities
Huurovereenkomst op basis van het standaardmodel van de Raad voor Onroerende Zaken (ROZ), model januari 2015, zoals gehanteerd door de NVM. De verhuur geschiedt onder voorbehoud van goedkeuring door verhuurder.
Aanvaarding
In overleg.
In- en uitklappen
Meer lezen
Minder lezen
Ligging
De kantoorruimte ligt op bedrijventerrein Harselaar in Barneveld, een strategische locatie vlak bij de op- en afritten van de A1 (Amersfoort–Apeldoorn) en de A30 richting Ede. Beide snelwegen zijn binnen 2 kilometer bereikbaar. Ook met het openbaar vervoer zit je goed: het Transferium Barneveld Noord met trein- en busverbindingen ligt op ongeveer ca. 300 meter loopafstand.
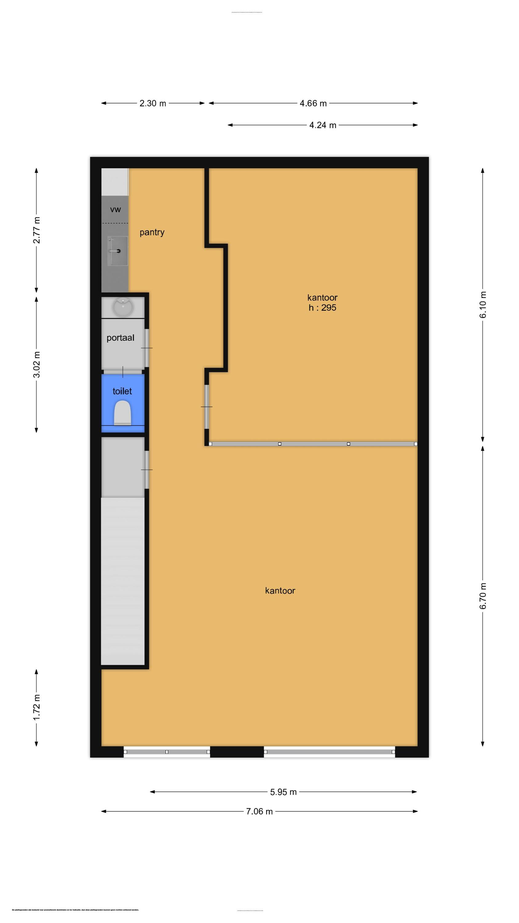
Indeling
De kantoorruimte heeft een open indeling met aan de voorzijde raampartijen. Aan de linkerkant ligt een pantry en een aparte toiletruimte. Rechts daarvan bevinden zich twee kantoor-/vergaderkamers, gescheiden door een tussenwand.
Vloeroppervlakte
Verdieping ca. 95 m²
Voorzieningen
• Warmtepomp
• Zonnepanelen
• Vloerverwarming op de verdieping
• Toilet met separaat wastafelmeubel en wastafel
• Luxe keuken met koelkast en vaatwasser
• Airco unit ten behoeve van verwarming en verkoeling
• Systeemplafond met LED-verlichting
• Elektrisch bedienbare jaloezieën
• Diverse elektrapunten
• Tegelvloer
• Raampartijen met veel daglichttoetreding
• Drie parkeerplaatsen
Algemeen
Bouwjaar 2023
Bestemming
Bestemd als Bedrijventerrein voor bedrijven van categorie 3.1 tot en met categorie 4.2.
Huurperiode
In overleg.
Huurbetaling
Per maand/kwartaal vooruit.
Huurprijsaanpassing
Jaarlijks, op basis van de wijziging van het maandprijs-indexcijfer volgens de consumentenprijsindex (CPI) reeks CPI-Alle Huishoudens (2015=100), gepubliceerd door het Centraal Bureau voor de Statistiek (CBS).
Zekerheidsstelling
Bankgarantie of waarborgsom ter grootte van 3 maanden huur inclusief servicekosten en de wettelijk verschuldigde omzetbelasting.
Overige condities
Huurovereenkomst op basis van het standaardmodel van de Raad voor Onroerende Zaken (ROZ), model januari 2015, zoals gehanteerd door de NVM. De verhuur geschiedt onder voorbehoud van goedkeuring door verhuurder.
Aanvaarding
In overleg.
Kenmerken
Overdracht
Bouw
Oppervlakten
Indeling
Energie
Omgeving
Parkeergelegenheid
Vraagprijs
€ 950 per maand
Status
Onder optie
Aanvaarding
In overleg
Hoofdfunctie
Kantoorruimte
Soort bouw
Bestaande bouw
Bouwjaar
2023
Oppervlakte
95 m²
Kantoorruimte oppervlakte
95 m²
Aantal bouwlagen
1 bouwlaag
Voorzieningen kantoorruimte
Te openen ramen, systeemplafond, toilet, pantry, verwarming en kamerindeling
Luchtbehandeling kantoorruimte
Airco
Energielabel
Niet beschikbaar
Ligging
Bedrijventerrein
Parkeerplaatsen (niet overdekt)
3
Vergelijkbaar aanbod
En, wat zijn uw uitdagingen of dromen? We helpen u graag actief.
Misschien kunt u niet de woning of het bedrijfspand vinden dat een kant-en-klaar antwoord is op uw vraag. Misschien bent u benieuwd hoe wij tegen uw wensen aankijken, met onze kennis van de lokale markt en ons grote netwerk van aanbieders en zoekers. Mogen we met u meedenken?