Wethouder van Hekezenlaan 13
3771 VS Barneveld
172 m²
543 m²
A
Omschrijving
Een statige notariswoning is veel meer dan alleen een vrijstaande woning. Binnen valt meteen de keurige afwerking, de vele ruimte, de vijf slaapkamers, een praktische bijkeuken en een inpandige garage op. Buiten zult u waarschijnlijk heel veel vertoeven. De tuin is tot in de puntjes toe verzorgd aangelegd, doordacht ingericht en perfect onderhouden. Het terras, groen, de overkapping en de privacy vormen hier een prachtig geheel. Het is een woning waar u zo uw meubels neer kunt zetten en kunt gaan wonen. Welkom in uw nieuwe (t)huis!
Hal:
De woning stapt u binnen in de hal, die afgewerkt is met lichte wanden, een gestuukt plafond en een grijze tegelvloer. Gelijk rechts treft u de garderobe, vervolgens de meterkast en aan de linkerkant bevindt zich de trapopgang naar de eerste verdieping en een toiletruimte met toilet en fonteintje. Alles oogt verzorgd en praktisch, precies wat u in een entree zoekt. Een nette binnenkomst die meteen laat zien hoe goed deze woning onderhouden is.
Woonkamer:
De woonkamer heeft een perfecte basis waardoor u hier al snel uw eigen (t)huis van kunt maken. De strakke wanden zijn voorzien van een lichte kleur, het plafond is gestuukt en op de vloer ligt een prachtige Franse eiken parketvloer. Het is een stijlvol geheel. Verder is de ruimte afgewerkt met travertin vensterbanken. De vele raampartijen zorgen voor veel natuurlijk daglicht in de ruimte. Daarbij is de woonkamer voorzien van een grote erker, dit creëert extra ruimte en geeft ook veel licht in de kamer. Een sfeervol detail is de Bellfire gashaard, deze zorgt voor fijne warmte op minder mooie dagen én voor extra sfeer.
Aan de achterzijde van de woonkamer is er voldoende ruimte voor het plaatsen van een royale eettafel. Hier bevinden zich tevens openslaande deuren met hordeur naar de tuin. Tijdens het eten geniet u zo van een prachtig uitzicht op de tuin. Op mooie dagen zijn de deuren te openen en combineert u binnen met buiten.
Keuken:
De keuken is ruim opgezet en helemaal gericht op gemak in het dagelijkse gebruiken. De keuken is een keuken met kwaliteitsapparatuur. De witte kasten in combinatie met het donkere aanrechtblad zorgt voor een modern geheel. U beschikt hier over een 5-pits gas op gasfornuis, een Novy afzuigkap, een Siemens vaatwasmachine, een combi stoom-oven en een grote Bosch koel-/vriescombinatie. Vanuit de keuken bereikt u de praktische bijkeuken. Een complete, doordachte keuken waar u elke dag weer opnieuw met veel plezier zult koken!
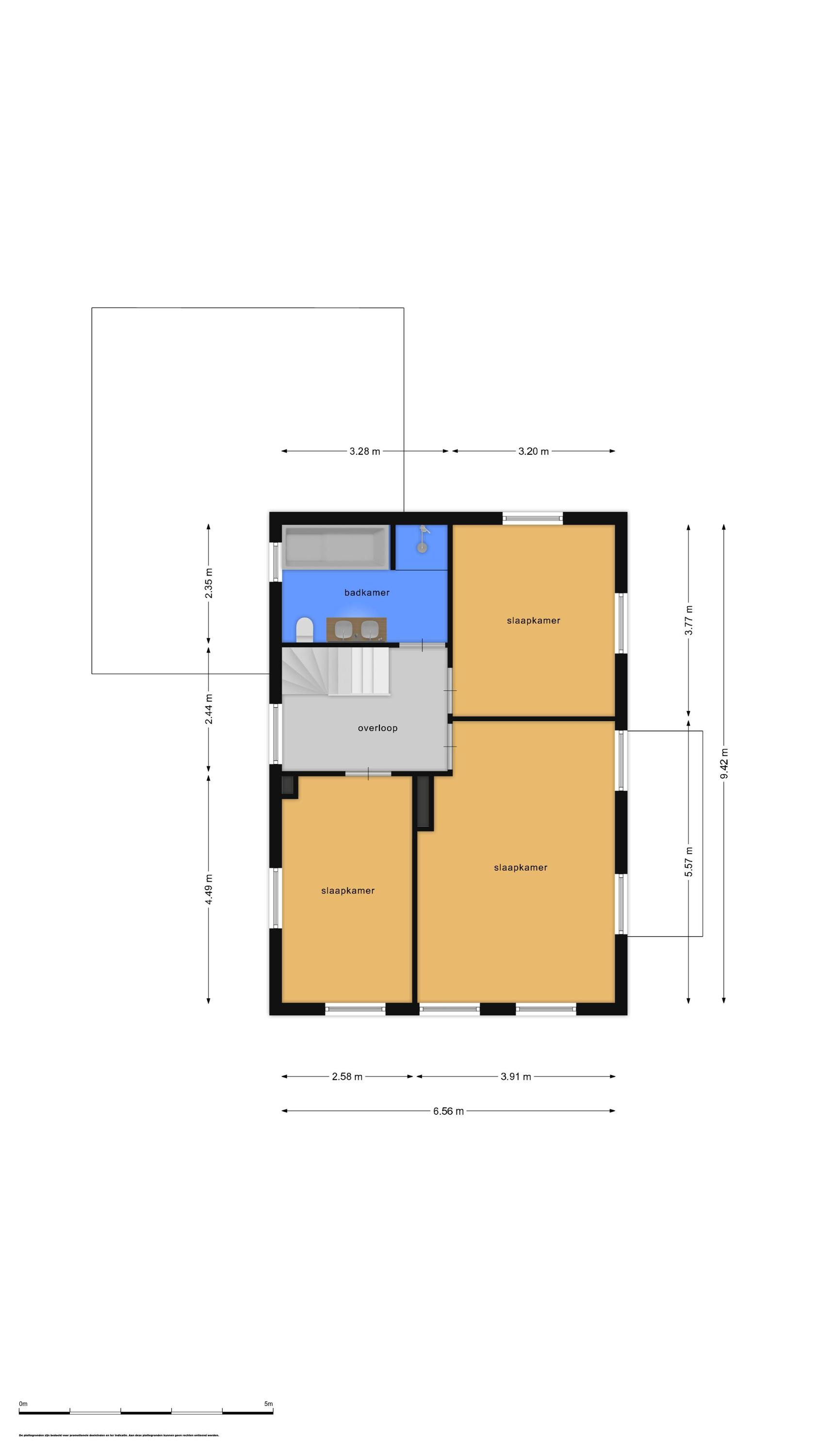
Eerste verdieping:
De royale overloop geeft u toegang tot drie slaapkamers en tot de badkamer. Alle kamers hebben een uitstekende maatvoering en een nette afwerking met vloerbedekking. Twee kamers bevinden zich aan de voorzijde en één aan de achterzijde. De ouderslaapkamer en de slaapkamer aan de achterzijde zijn beiden voorzien van handmatig bedienbare screens.
Badkamer:
De badkamer is afgewerkt met lichte tegels op de wand en een donkere tegelvloer. Dit zorgt voor een stijlvol geheel. In deze ruimte beschikt u over een ligbad, douchecabine met regendouche, twee wastafels, designkranen, een toilet en een designradiator. Daarbij profiteert u in deze ruimte van vloerverwarming, ideaal zo blijft het altijd een aangename temperatuur. Een badkamer waar comfort en gemak de boventoon voeren.
Tweede verdieping:
Via de vaste trap bereiken we de tweede verdieping. Op deze verdieping treffen we nog twee slaapkamers aan. Beide kamers hebben een royaal formaat en zijn voorzien van een dakkapel. Op één kamer beschikt u tevens over een vaste kasten met inloop mogelijkheid die u veel ruimte bieden voor het opbergen van uw spullen. Daarnaast vindt u op deze slaapkamer ook een eikenhout bureau. Een fijne ruimte om bijvoorbeeld als kantoor te gebruiken. Verder krijgt u vanaf de overloop ook toegang tot de technische ruimte. Hier vindt u de opstelling van de cv-ketel en de WTW-installatie.
Bijkeuken:
Een praktische bijkeuken zorgt ervoor dat u niet direct met uw vieze schoenen het leefgedeelte binnenstapt. In de bijkeuken bevindt zich de aansluiting voor de witgoedapparatuur met daarnaast een vaste kastenwand. Handig voor alle schoonmaakspullen en voorraad, zo blijft de ruimte netjes en opgeruimd.
Aan de andere zijde treft u een uitstortgootsteen aan. Ideaal om wat spullen af te spoelen en om uw handen te wassen na een klus buiten.
Inpandige garage:
Vanuit de bijkeuken krijgt u toegang tot de inpandige garage. In de garage treft u een loopdeur aan, een schakelklok voor de tuinverlichting en een elektrisch bedienbare garagedeur. De garage biedt u plek voor het stallen van de fietsen en voor het opbergen van uw tuingereedschap.
Tuin:
Deze ruime tuin is werkelijk met zorg aangelegd, aan alles is gedacht en dat is echt te zien. De tuin is speels ingedeeld met strakke hagen, diverse beplanting, bestrating en een groot gazon van kunstgras die heel onderhoudsvriendelijk is. Langs de randen staan verschillende leilindes waardoor u van veel privacy geniet in deze tuin. Een plek in de zon of een plek in de schaduw, in deze tuin is het allemaal mogelijk. De tuin biedt u diverse terrassen waar u een leuke zithoek kunt plaatsen. Ook beschikt de tuin over een overkapping, die zich aan de woning bevindt. De overkapping met spotjes is voorzien van een prachtige lichtstraat, wat zorgt voor veel daglicht. En als u hier zit, kijkt u prachtig uit over de tuin. Is het een zonnige dag? Plaats het warmtewerend doek voor de lichtstraat en ook dan kunt u hier fijn genieten. Dankzij de twee terrasverwarmers kunt u hier ook op minder mooie dagen goed vertoeven. De tuin is verder voorzien van een buitenkraan, een druppelslang, verlichting en diverse elektrapunten. Een tuin die tot in detail klopt: ruim, groen en praktisch ingedeeld voor een optimaal buitenleven.
Voortuin:
Via de zijkant van de woning lopen we verder naar de voortuin. Ook deze is met zorg aangelegd. In de voortuin treft u diverse beplanting, taxussen en grindpad.
Tevens biedt de voorzijde van de woning u een ruime oprit. Hier kunt u met gemak meerdere auto's parkeren.
Woonomgeving:
En dan nog de ligging van de woning, deze is met recht een uniek en perfect te noemen! Op loopafstand bevindt zich het Schaffelaarse Bos waar u kunt genieten van mooie wandelroutes. Het centrum van Barneveld met alle voorzieningen is op fietsafstand te bereiken en de uitvalswegen zijn ook op korte afstand te vinden. Daarbij is de woning gelegen aan een weg waar alleen bestemmingsverkeer langs komt, dit betekent een rustige en kindvriendelijke wijk met weinig verkeer. Hier woont u rustig, maar dichtbij alles wat Barneveld te bieden heeft.
Algemeen:
- Energielabel A
- Vloerverwarming in de badkamer
- Handmatige bedienbare screens begane grond, ouderslaapkamer en slaapkamer achterzijde
- Warmtewerend doek bij lichtkoepel
- Buitenzijde geschilderd in mei/juni 2025 (m.u.v. dakkapellen)
- Dakkapellen zijn in 2021 geschilderd
In- en uitklappen
Meer lezen
Minder lezen
Hal:
De woning stapt u binnen in de hal, die afgewerkt is met lichte wanden, een gestuukt plafond en een grijze tegelvloer. Gelijk rechts treft u de garderobe, vervolgens de meterkast en aan de linkerkant bevindt zich de trapopgang naar de eerste verdieping en een toiletruimte met toilet en fonteintje. Alles oogt verzorgd en praktisch, precies wat u in een entree zoekt. Een nette binnenkomst die meteen laat zien hoe goed deze woning onderhouden is.
Woonkamer:
De woonkamer heeft een perfecte basis waardoor u hier al snel uw eigen (t)huis van kunt maken. De strakke wanden zijn voorzien van een lichte kleur, het plafond is gestuukt en op de vloer ligt een prachtige Franse eiken parketvloer. Het is een stijlvol geheel. Verder is de ruimte afgewerkt met travertin vensterbanken. De vele raampartijen zorgen voor veel natuurlijk daglicht in de ruimte. Daarbij is de woonkamer voorzien van een grote erker, dit creëert extra ruimte en geeft ook veel licht in de kamer. Een sfeervol detail is de Bellfire gashaard, deze zorgt voor fijne warmte op minder mooie dagen én voor extra sfeer.
Aan de achterzijde van de woonkamer is er voldoende ruimte voor het plaatsen van een royale eettafel. Hier bevinden zich tevens openslaande deuren met hordeur naar de tuin. Tijdens het eten geniet u zo van een prachtig uitzicht op de tuin. Op mooie dagen zijn de deuren te openen en combineert u binnen met buiten.
Keuken:
De keuken is ruim opgezet en helemaal gericht op gemak in het dagelijkse gebruiken. De keuken is een keuken met kwaliteitsapparatuur. De witte kasten in combinatie met het donkere aanrechtblad zorgt voor een modern geheel. U beschikt hier over een 5-pits gas op gasfornuis, een Novy afzuigkap, een Siemens vaatwasmachine, een combi stoom-oven en een grote Bosch koel-/vriescombinatie. Vanuit de keuken bereikt u de praktische bijkeuken. Een complete, doordachte keuken waar u elke dag weer opnieuw met veel plezier zult koken!
Eerste verdieping:
De royale overloop geeft u toegang tot drie slaapkamers en tot de badkamer. Alle kamers hebben een uitstekende maatvoering en een nette afwerking met vloerbedekking. Twee kamers bevinden zich aan de voorzijde en één aan de achterzijde. De ouderslaapkamer en de slaapkamer aan de achterzijde zijn beiden voorzien van handmatig bedienbare screens.
Badkamer:
De badkamer is afgewerkt met lichte tegels op de wand en een donkere tegelvloer. Dit zorgt voor een stijlvol geheel. In deze ruimte beschikt u over een ligbad, douchecabine met regendouche, twee wastafels, designkranen, een toilet en een designradiator. Daarbij profiteert u in deze ruimte van vloerverwarming, ideaal zo blijft het altijd een aangename temperatuur. Een badkamer waar comfort en gemak de boventoon voeren.
Tweede verdieping:
Via de vaste trap bereiken we de tweede verdieping. Op deze verdieping treffen we nog twee slaapkamers aan. Beide kamers hebben een royaal formaat en zijn voorzien van een dakkapel. Op één kamer beschikt u tevens over een vaste kasten met inloop mogelijkheid die u veel ruimte bieden voor het opbergen van uw spullen. Daarnaast vindt u op deze slaapkamer ook een eikenhout bureau. Een fijne ruimte om bijvoorbeeld als kantoor te gebruiken. Verder krijgt u vanaf de overloop ook toegang tot de technische ruimte. Hier vindt u de opstelling van de cv-ketel en de WTW-installatie.
Bijkeuken:
Een praktische bijkeuken zorgt ervoor dat u niet direct met uw vieze schoenen het leefgedeelte binnenstapt. In de bijkeuken bevindt zich de aansluiting voor de witgoedapparatuur met daarnaast een vaste kastenwand. Handig voor alle schoonmaakspullen en voorraad, zo blijft de ruimte netjes en opgeruimd.
Aan de andere zijde treft u een uitstortgootsteen aan. Ideaal om wat spullen af te spoelen en om uw handen te wassen na een klus buiten.
Inpandige garage:
Vanuit de bijkeuken krijgt u toegang tot de inpandige garage. In de garage treft u een loopdeur aan, een schakelklok voor de tuinverlichting en een elektrisch bedienbare garagedeur. De garage biedt u plek voor het stallen van de fietsen en voor het opbergen van uw tuingereedschap.
Tuin:
Deze ruime tuin is werkelijk met zorg aangelegd, aan alles is gedacht en dat is echt te zien. De tuin is speels ingedeeld met strakke hagen, diverse beplanting, bestrating en een groot gazon van kunstgras die heel onderhoudsvriendelijk is. Langs de randen staan verschillende leilindes waardoor u van veel privacy geniet in deze tuin. Een plek in de zon of een plek in de schaduw, in deze tuin is het allemaal mogelijk. De tuin biedt u diverse terrassen waar u een leuke zithoek kunt plaatsen. Ook beschikt de tuin over een overkapping, die zich aan de woning bevindt. De overkapping met spotjes is voorzien van een prachtige lichtstraat, wat zorgt voor veel daglicht. En als u hier zit, kijkt u prachtig uit over de tuin. Is het een zonnige dag? Plaats het warmtewerend doek voor de lichtstraat en ook dan kunt u hier fijn genieten. Dankzij de twee terrasverwarmers kunt u hier ook op minder mooie dagen goed vertoeven. De tuin is verder voorzien van een buitenkraan, een druppelslang, verlichting en diverse elektrapunten. Een tuin die tot in detail klopt: ruim, groen en praktisch ingedeeld voor een optimaal buitenleven.
Voortuin:
Via de zijkant van de woning lopen we verder naar de voortuin. Ook deze is met zorg aangelegd. In de voortuin treft u diverse beplanting, taxussen en grindpad.
Tevens biedt de voorzijde van de woning u een ruime oprit. Hier kunt u met gemak meerdere auto's parkeren.
Woonomgeving:
En dan nog de ligging van de woning, deze is met recht een uniek en perfect te noemen! Op loopafstand bevindt zich het Schaffelaarse Bos waar u kunt genieten van mooie wandelroutes. Het centrum van Barneveld met alle voorzieningen is op fietsafstand te bereiken en de uitvalswegen zijn ook op korte afstand te vinden. Daarbij is de woning gelegen aan een weg waar alleen bestemmingsverkeer langs komt, dit betekent een rustige en kindvriendelijke wijk met weinig verkeer. Hier woont u rustig, maar dichtbij alles wat Barneveld te bieden heeft.
Algemeen:
- Energielabel A
- Vloerverwarming in de badkamer
- Handmatige bedienbare screens begane grond, ouderslaapkamer en slaapkamer achterzijde
- Warmtewerend doek bij lichtkoepel
- Buitenzijde geschilderd in mei/juni 2025 (m.u.v. dakkapellen)
- Dakkapellen zijn in 2021 geschilderd
Kenmerken
Overdracht
Bouw
Oppervlakten en inhoud
Indeling
Energie
Kadastrale gegevens
Buitenruimte
Parkeergelegenheid
Vraagprijs
€ 915.000 k.k
Status
Verkocht onder voorbehoud
Aanvaarding
In overleg
Soort woonhuis
Eengezinswoning, vrijstaande woning
Soort bouw
Bestaande bouw
Bouwjaar
2002
Soort dak
Pannen schilddak
Gebruiksoppervlakten
Wonen
172 m²
Gebouwgebonden buitenruimte
18 m²
Perceel
543 m²
Inhoud
690 m²
Aantal badkamers
1 badkamer en 1 toilet
Badkamervoorzieningen
Ligbad, toilet, dubbele wastafel en inloopdouche
Aantal woonlagen
3 woonlagen
Voorzieningen
Buitenzonwering
Energielabel
A
Isolatie
Dakisolatie, muurisolatie, vloerisolatie en dubbel glas
Verwarming
Cv ketel
Warm water
Cv ketel
Verwarming verbruik
Gas
Perceel
Barneveld B 5629
Oppervlakte
543 m²
Eigendomssituatie
Volle eigendom
Ligging
Aan rustige weg en in woonwijk
Tuin
Achtertuin, voortuin en zijtuin
Achtertuin
276 m² (19,0 meter diep en 14,5 meter breed)
Ligging tuin
Gelegen op zuidoosten
Soort parkeergelegenheid
Op eigen terrein
Vergelijkbaar aanbod
En, wat zijn uw uitdagingen of dromen? We helpen u graag actief.
Misschien kunt u niet de woning of het bedrijfspand vinden dat een kant-en-klaar antwoord is op uw vraag. Misschien bent u benieuwd hoe wij tegen uw wensen aankijken, met onze kennis van de lokale markt en ons grote netwerk van aanbieders en zoekers. Mogen we met u meedenken?