Zijdehoenderlaan 4
3772 WW Barneveld
102 m²
163 m²
A
Omschrijving
Aan de Zijdehoenderlaan 4 in Barneveld staat deze leuke middenwoning klaar om u te verrassen! Op de begane grond geniet u van vloerverwarming en een keurige, strakke afwerking die meteen een warme sfeer geeft. Daarnaast is de eerste verdieping voorzien van airconditioning en de woning zelf van 3 zonnepanelen. Verder is de diepe achtertuin met zonligging op het zuidwesten én gezellige veranda de perfecte plek voor het buitenleven. Kortom: een heerlijke, instapklare woning welke u zo kunt betrekken!
Hal
Welkom, hier bent u thuis! Binnenkomen doet u in de ruime hal en u treft hier een toiletruimte met fonteintje, de meterkast en de trapopgang naar de eerste verdieping. Daarnaast verkrijgt u via de hal toegang tot het leefgedeelte.
Woonkamer
Deze uitgebouwde woonkamer ademt sfeer en warmte uit. Dankzij de vloerverwarming over de gehele begane grond en de strakke afwerking voelt het direct als thuiskomen. De stijlvolle inbouwspots zorgen voor fijn licht, terwijl de vaste kastenwand met gashaard een echte eyecatcher is én extra opbergruimte biedt. Verder is de ruimte voorzien van een praktische trapkast en verkrijgt u vanuit de woonkamer toegang tot de achtertuin.
Keuken
Aan de voorkant van de woning vindt u de keuken met zwarte fronten en een licht blad, die in twee delen is opgesteld. Compleet met een 4-pits kookplaat, afzuigkap, vaatwasser, combi-magnetron en een koel-/vries combinatie is koken hier een feestje. Het gezellige bargedeelte met plek voor drie barkrukken nodigt uit tot een kop koffie in de ochtend of een borrel tijdens het koken. Functioneel, modern en sfeervol in één!
1e verdieping
Op de eerste verdieping vindt u drie ruime slaapkamers, elk voorzien van een elektrisch bedienbaar rolluik. Aan de achterzijde beschikken twee kamers over een vaste kast of complete kastenwand, ideaal voor extra opbergruimte. Dankzij de airconditioning geniet u hier het hele jaar door van een fijn binnenklimaat.
Badkamer
De volledig betegelde badkamer is ook op de eerste verdieping te vinden. De badkamer beschikt over een ligbad, een tweede toilet, een inloopdouche met regendouche en een wastafelmeubel met wastafel.
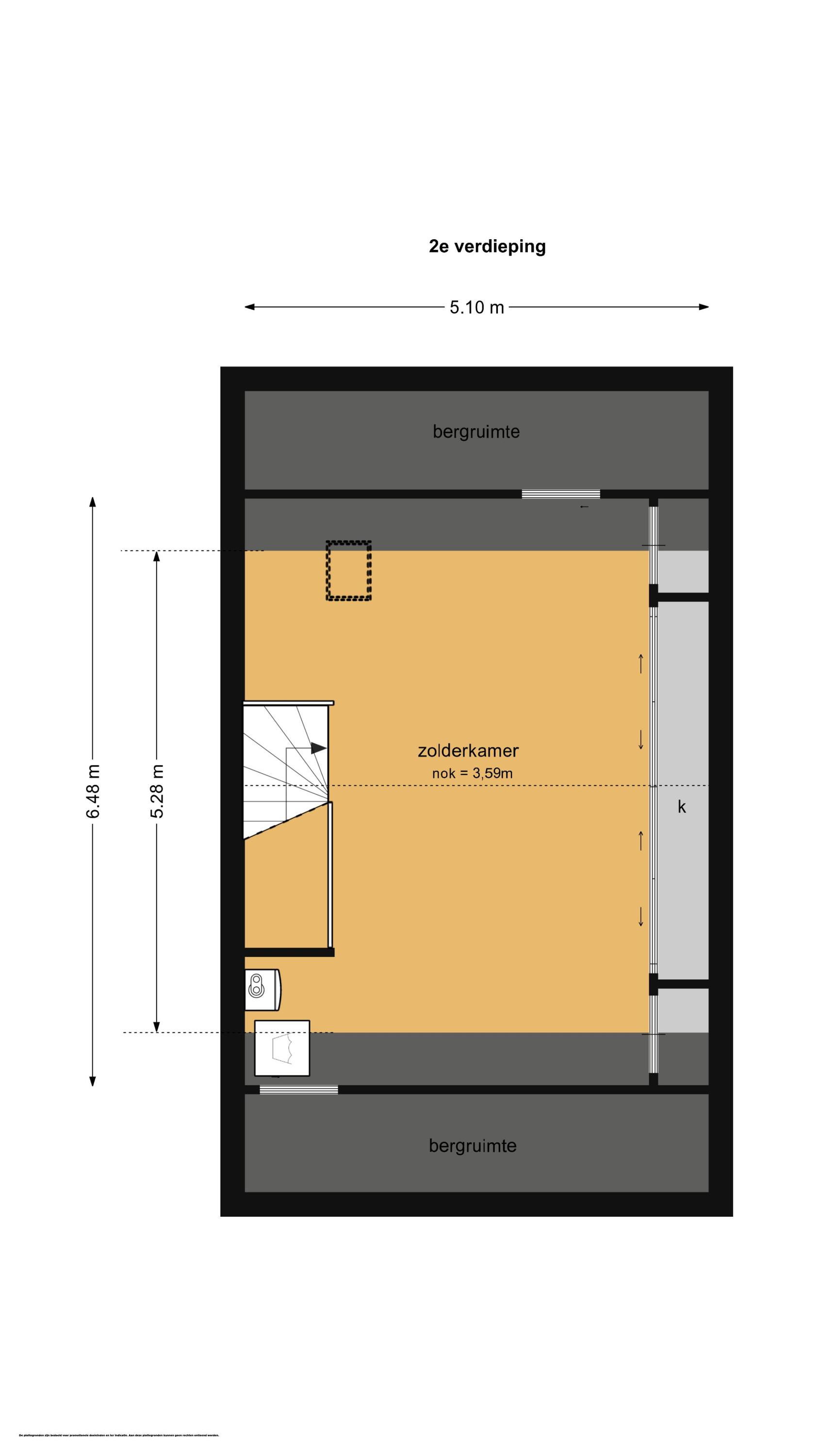
2e verdieping
De tweede verdieping biedt mogelijkheden! Met een praktische vaste kastenwand, witgoedaansluitingen en de opstelling van de C.V.-ketel is de basis al aanwezig. Deze ruimte kan u geheel naar eigen wens opknappen, naar wens indelen of gebruiken.
Achtertuin
De diepe, fraai aangelegde achtertuin is een heerlijke plek om van het buitenleven te genieten. Achterin de tuin staat een sfeervolle houten veranda met berging, perfect voor gezellige avonden! Daarnaast is de veranda voorzien van een berging en uw eigen achterom. Dankzij de gunstige zonligging op het zuidwesten geniet u hier volop van de zon!
Woonomgeving
Deze prachtige middenwoning is gelegen in de kindvriendelijke woonwijk 'Veller' te Barneveld. In de nabij omgeving vindt u diverse leuke speeltuintjes, veel parkeergelegenheid en het treinstation Barneveld-Zuid. Daarnaast zijn de openbare voorzieningen, zoals de supermarkt binnen enkele minuten te bereiken.
Algemeen
- Energielabel A
- 3 zonnepanelen
- Vloerverwarming begane grond
- Airconditioning slaapkamer 1e verdieping
- Elektrisch bedienbare rolluiken slaapkamers 1e verdieping
In- en uitklappen
Meer lezen
Minder lezen
Hal
Welkom, hier bent u thuis! Binnenkomen doet u in de ruime hal en u treft hier een toiletruimte met fonteintje, de meterkast en de trapopgang naar de eerste verdieping. Daarnaast verkrijgt u via de hal toegang tot het leefgedeelte.
Woonkamer
Deze uitgebouwde woonkamer ademt sfeer en warmte uit. Dankzij de vloerverwarming over de gehele begane grond en de strakke afwerking voelt het direct als thuiskomen. De stijlvolle inbouwspots zorgen voor fijn licht, terwijl de vaste kastenwand met gashaard een echte eyecatcher is én extra opbergruimte biedt. Verder is de ruimte voorzien van een praktische trapkast en verkrijgt u vanuit de woonkamer toegang tot de achtertuin.
Keuken
Aan de voorkant van de woning vindt u de keuken met zwarte fronten en een licht blad, die in twee delen is opgesteld. Compleet met een 4-pits kookplaat, afzuigkap, vaatwasser, combi-magnetron en een koel-/vries combinatie is koken hier een feestje. Het gezellige bargedeelte met plek voor drie barkrukken nodigt uit tot een kop koffie in de ochtend of een borrel tijdens het koken. Functioneel, modern en sfeervol in één!
1e verdieping
Op de eerste verdieping vindt u drie ruime slaapkamers, elk voorzien van een elektrisch bedienbaar rolluik. Aan de achterzijde beschikken twee kamers over een vaste kast of complete kastenwand, ideaal voor extra opbergruimte. Dankzij de airconditioning geniet u hier het hele jaar door van een fijn binnenklimaat.
Badkamer
De volledig betegelde badkamer is ook op de eerste verdieping te vinden. De badkamer beschikt over een ligbad, een tweede toilet, een inloopdouche met regendouche en een wastafelmeubel met wastafel.
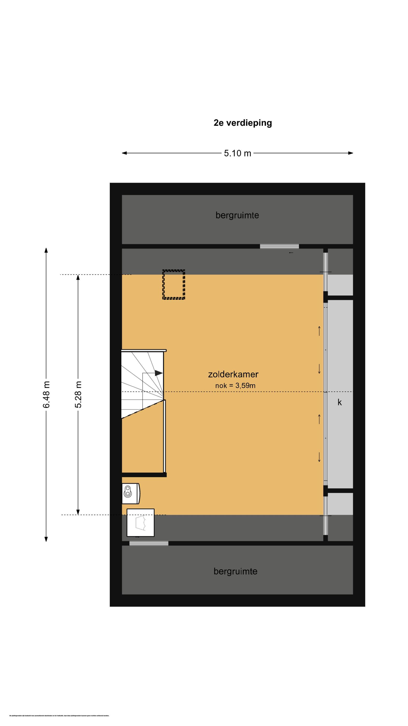
2e verdieping
De tweede verdieping biedt mogelijkheden! Met een praktische vaste kastenwand, witgoedaansluitingen en de opstelling van de C.V.-ketel is de basis al aanwezig. Deze ruimte kan u geheel naar eigen wens opknappen, naar wens indelen of gebruiken.
Achtertuin
De diepe, fraai aangelegde achtertuin is een heerlijke plek om van het buitenleven te genieten. Achterin de tuin staat een sfeervolle houten veranda met berging, perfect voor gezellige avonden! Daarnaast is de veranda voorzien van een berging en uw eigen achterom. Dankzij de gunstige zonligging op het zuidwesten geniet u hier volop van de zon!
Woonomgeving
Deze prachtige middenwoning is gelegen in de kindvriendelijke woonwijk 'Veller' te Barneveld. In de nabij omgeving vindt u diverse leuke speeltuintjes, veel parkeergelegenheid en het treinstation Barneveld-Zuid. Daarnaast zijn de openbare voorzieningen, zoals de supermarkt binnen enkele minuten te bereiken.
Algemeen
- Energielabel A
- 3 zonnepanelen
- Vloerverwarming begane grond
- Airconditioning slaapkamer 1e verdieping
- Elektrisch bedienbare rolluiken slaapkamers 1e verdieping
Kenmerken
Overdracht
Bouw
Oppervlakten en inhoud
Indeling
Energie
Kadastrale gegevens
Buitenruimte
Parkeergelegenheid
Vraagprijs
€ 509.000 k.k
Status
Verkocht
Soort woonhuis
Eengezinswoning, tussenwoning
Soort bouw
Bestaande bouw
Bouwjaar
2017
Soort dak
Pannen zadeldak
Gebruiksoppervlakten
Wonen
102 m²
Externe bergruimte
7 m²
Perceel
163 m²
Inhoud
450 m²
Aantal badkamers
1 badkamer en 1 toilet
Badkamervoorzieningen
Ligbad, toilet, wastafel, wastafelmeubel en inloopdouche
Aantal woonlagen
3 woonlagen
Voorzieningen
Rolluiken, buitenzonwering, airconditioning, dakraam en zonnepanelen
Energielabel
A
Isolatie
Dakisolatie, muurisolatie, vloerisolatie en dubbel glas
Verwarming
Cv ketel, vloerverwarming gedeeltelijk en gashaard
Warm water
Cv ketel
Verwarming verbruik
Gas
Perceel
Barneveld C 9311
Oppervlakte
163 m²
Eigendomssituatie
Volle eigendom
Ligging
Aan rustige weg, in woonwijk en vrij uitzicht
Tuin
Achtertuin en voortuin
Achtertuin
113 m² (15,0 meter diep en 7,5 meter breed)
Ligging tuin
Gelegen op zuidwesten bereikbaar via achterom
Soort parkeergelegenheid
Openbaar parkeren
Vergelijkbaar aanbod
En, wat zijn uw uitdagingen of dromen? We helpen u graag actief.
Misschien kunt u niet de woning of het bedrijfspand vinden dat een kant-en-klaar antwoord is op uw vraag. Misschien bent u benieuwd hoe wij tegen uw wensen aankijken, met onze kennis van de lokale markt en ons grote netwerk van aanbieders en zoekers. Mogen we met u meedenken?