De Fliert 25
3791 PV Achterveld
186 m²
Omschrijving
Bedrijfspand kopen waar je meters kunt maken? Dit moderne bedrijfspand (2023) biedt ca. 141 m² op de begane grond en 45 m² op de verdieping. De begane grond heeft een vrije hoogte van ca. 6,3 meter en op de verdieping beschik je over ca. 2,7 meter hoogte. Dankzij de overheaddeur (4x4 meter) en de vide laad en los je eenvoudig, ook met grotere goederen. De hal is voorzien van een betonvloer, krachtstroom, verlichting, toilet, warmtepomp en vloerverwarming. Mede dankzij de hoekligging en de vele raampartijen komt er veel daglicht naar binnen. Buiten heb je de beschikking over vijf parkeerplaatsen direct voor de deur. Het bedrijfspand is gelegen op een kleinschalig bedrijventerrein met Barneveld op circa 10 minuten rijden en de op- en afritten van de A1 op ongeveer 12 minuten afstand. Recent gebouwd, goede afmetingen, energiezuinig, ingedeeld met ideale hoogtes en parkeerplaatsen voor de deur, past dit bij jouw plannen?
Ligging
De ligging is rustig op een kleinschalig bedrijventerrein aan de rand van Achterveld. Met de auto ben je snel onderweg en zit je binnen 12 minuten op de A1. Ook met het openbaar vervoer is de locatie bereikbaar, met bushaltes in de omgeving die aansluiten op omliggende plaatsen en stations.
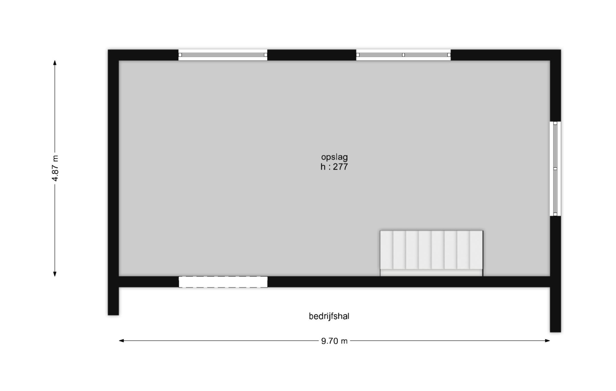
Indeling
De begane grond bestaat uit een ruime bedrijfshal met aan de voorzijde een entree/kantoorruimte en een toilet met meterkast. Vanuit deze ruimte is er via een vaste trap toegang tot de verdieping. De verdieping is ingericht als open opslagruimte met zicht op de hal door de vide.
Vloeroppervlakte
Begane grond ca. 141 m²
Verdieping ca. 45 m²
Voorzieningen
• Krachtstroom
• Warmtepomp
• Vloerverwarming
• Toilet
• Hoogte bedrijfshal begane grond ca. 6,3 meter
• Hoogte bedrijfshal verdieping ca. 2,7 meter
• Vide met laadopening
• Daglicht
• 5 eigen parkeerplaatsen
Algemeen
Bouwjaar 2023 Servicekosten bedragen ca. € 207,- per maand incl. btw (betaling is per kwartaal)
Bestemming
Enkelbestemming Bedrijf, bedrijf tot en met categorie 2.
Overige condities
De koper betaalt de overdrachtsbelasting en notariskosten voor de eigendomsoverdracht.
Aanvaarding
In overleg.
In- en uitklappen
Meer lezen
Minder lezen
Ligging
De ligging is rustig op een kleinschalig bedrijventerrein aan de rand van Achterveld. Met de auto ben je snel onderweg en zit je binnen 12 minuten op de A1. Ook met het openbaar vervoer is de locatie bereikbaar, met bushaltes in de omgeving die aansluiten op omliggende plaatsen en stations.
Indeling
De begane grond bestaat uit een ruime bedrijfshal met aan de voorzijde een entree/kantoorruimte en een toilet met meterkast. Vanuit deze ruimte is er via een vaste trap toegang tot de verdieping. De verdieping is ingericht als open opslagruimte met zicht op de hal door de vide.
Vloeroppervlakte
Begane grond ca. 141 m²
Verdieping ca. 45 m²
Voorzieningen
• Krachtstroom
• Warmtepomp
• Vloerverwarming
• Toilet
• Hoogte bedrijfshal begane grond ca. 6,3 meter
• Hoogte bedrijfshal verdieping ca. 2,7 meter
• Vide met laadopening
• Daglicht
• 5 eigen parkeerplaatsen
Algemeen
Bouwjaar 2023 Servicekosten bedragen ca. € 207,- per maand incl. btw (betaling is per kwartaal)
Bestemming
Enkelbestemming Bedrijf, bedrijf tot en met categorie 2.
Overige condities
De koper betaalt de overdrachtsbelasting en notariskosten voor de eigendomsoverdracht.
Aanvaarding
In overleg.
Kenmerken
Overdracht
Bouw
Oppervlakten
Indeling
Energie
Omgeving
Parkeergelegenheid
Vraagprijs
€ 450.000 k.k
Status
Nieuw
Aanvaarding
In overleg
Hoofdfunctie
Bedrijfsruimte
Soort bouw
Bestaande bouw
Bouwjaar
2023
Oppervlakte
186 m²
Bedrijfshal oppervlak
186 m²
Voorzieningen bedrijfshal
Overheaddeuren, krachtstroom, betonvloer en toilet
Energielabel
Niet beschikbaar
Ligging
Bedrijventerrein
Parkeerplaatsen (niet overdekt)
5
Vergelijkbaar aanbod
En, wat zijn uw uitdagingen of dromen? We helpen u graag actief.
Misschien kunt u niet de woning of het bedrijfspand vinden dat een kant-en-klaar antwoord is op uw vraag. Misschien bent u benieuwd hoe wij tegen uw wensen aankijken, met onze kennis van de lokale markt en ons grote netwerk van aanbieders en zoekers. Mogen we met u meedenken?