Smitspol 7 – a 19
3861 RS Nijkerk
120 m²
Omschrijving
Zoek je een strakke, lichte bedrijfsruimte waar je zó in kunt trekken? De unit ligt op de hoek, dus er komt veel daglicht naar binnen dankzij de grote raampartijen. Op de begane grond is circa 60 m² bedrijfsruimte met een eigen entree, elektrische overheaddeur en een toilet. De grote glazen deuren aan de voorzijde zorgen niet alleen voor veel licht, maar geven ook direct toegang tot het parkeerterrein. Op de verdieping is nog eens 60 m² ruimte met een pantry incl. koel-/vriescombinatie, vaatwasser en boiler. Voor de deur liggen twee eigen parkeerplaatsen. Het bedrijfsverzamelgebouw is recent opgeleverd, netjes afgewerkt en deze bedrijfsunit is direct te gebruiken. Dankzij de ligging nabij de op- en afritten van de A28 en A1 ben je binnen een paar minuten richting Amersfoort, Zwolle en de Randstad. Hier actief aan de slag?
Ligging
Het bedrijfsverzamelgebouw is gunstig gelegen op een bedrijventerrein met uitstekende bereikbaarheid. De op- en afritten van de snelwegen A28 en A1 zijn binnen enkele minuten te bereiken, wat snelle verbindingen biedt richting Amersfoort, Utrecht en Zwolle. Het centrum van Nijkerk bevindt zich op circa 5 minuten rijafstand en biedt diverse voorzieningen.
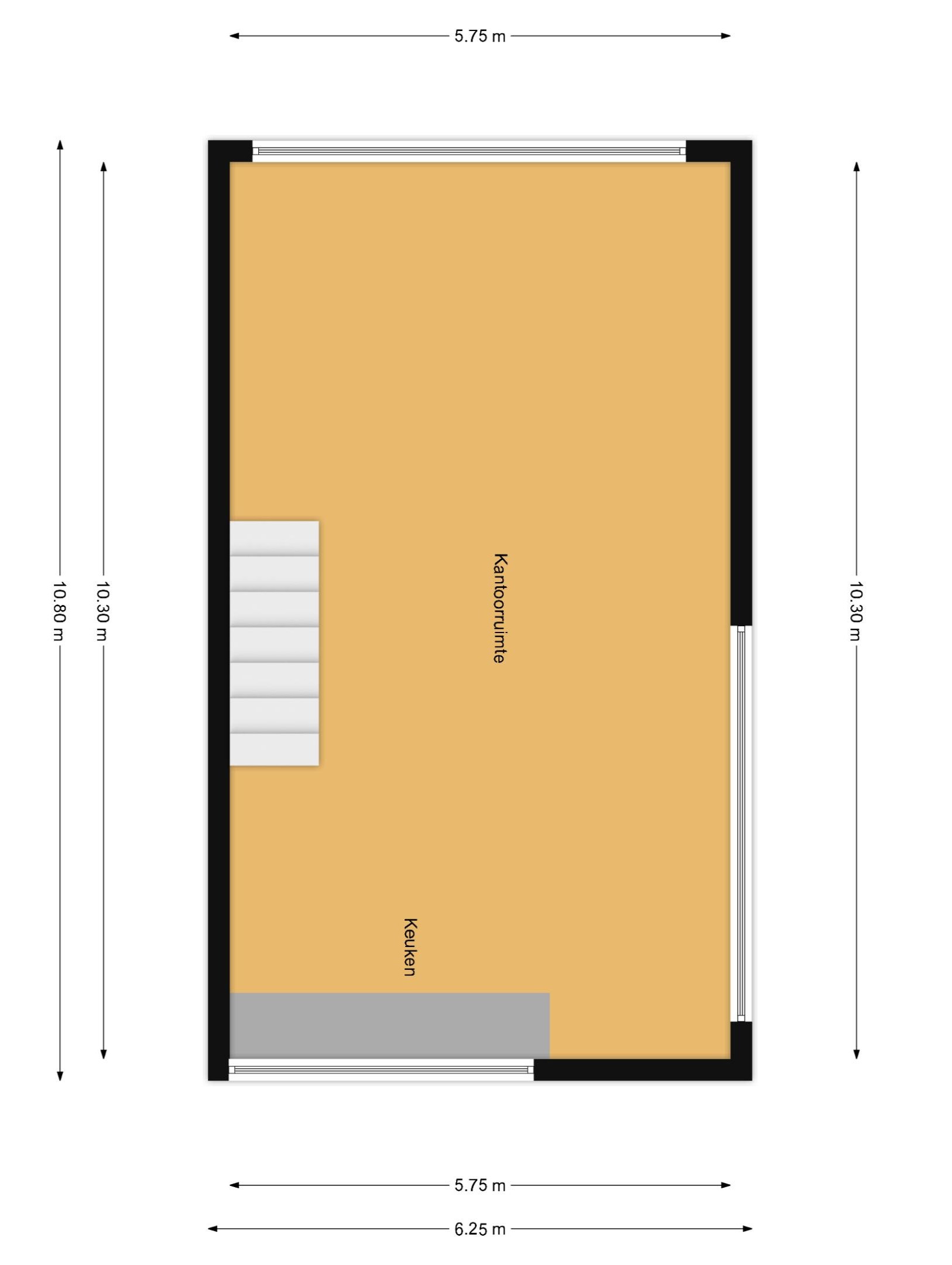
Indeling
Op de begane grond vind je de bedrijfsruimte met een eigen entree, toilet, meterkast en trap naar boven. Op de eerste verdieping ligt een open kantoorruimte met een pantry.
Vloeroppervlakte
Begane grond ca. 60 m² BVO
Verdieping ca. 60 m² BVO
Voorzieningen
• Overheaddeur van 4,5 meter hoog en 4 meter breed
• Begane grond draagkracht maximaal 1.000kg/m2
• Verdieping draagkracht maximaal 400kg/m2
• Toilet begane grond
• Uitstortgootsteen
• Pantry incl. koel-/vriescombinatie, vaatwasser en boiler op de verdieping
• Elektrische infrarood heaters
• Verlichting
• Diverse elektrapunten
• Vloerverwarming begane grond en verdieping (niet aangesloten)
Algemeen
Bouwjaar 2024
Bestemming
Enkelbestemming Bedrijventerrein, bedrijf tot en met categorie 4.2
Huurperiode
In overleg.
Huurbetaling
Per maand/kwartaal vooruit.
Huurprijsaanpassing
Jaarlijks, op basis van de wijziging van het maandprijs-indexcijfer volgens de consumentenprijsindex (CPI) reeks CPI-Alle Huishoudens (2015=100), gepubliceerd door het Centraal Bureau voor de Statistiek (CBS).
Zekerheidsstelling
Bankgarantie of waarborgsom ter grootte van 3 maanden huur inclusief servicekosten en de wettelijk verschuldigde omzetbelasting.
Overige condities
Huurovereenkomst op basis van het standaardmodel van de Raad voor Onroerende Zaken (ROZ), model januari 2015, zoals gehanteerd door de NVM. De verhuur geschiedt onder voorbehoud van goedkeuring door verhuurder.
Aanvaarding
In overleg.
In- en uitklappen
Meer lezen
Minder lezen
Ligging
Het bedrijfsverzamelgebouw is gunstig gelegen op een bedrijventerrein met uitstekende bereikbaarheid. De op- en afritten van de snelwegen A28 en A1 zijn binnen enkele minuten te bereiken, wat snelle verbindingen biedt richting Amersfoort, Utrecht en Zwolle. Het centrum van Nijkerk bevindt zich op circa 5 minuten rijafstand en biedt diverse voorzieningen.
Indeling
Op de begane grond vind je de bedrijfsruimte met een eigen entree, toilet, meterkast en trap naar boven. Op de eerste verdieping ligt een open kantoorruimte met een pantry.
Vloeroppervlakte
Begane grond ca. 60 m² BVO
Verdieping ca. 60 m² BVO
Voorzieningen
• Overheaddeur van 4,5 meter hoog en 4 meter breed
• Begane grond draagkracht maximaal 1.000kg/m2
• Verdieping draagkracht maximaal 400kg/m2
• Toilet begane grond
• Uitstortgootsteen
• Pantry incl. koel-/vriescombinatie, vaatwasser en boiler op de verdieping
• Elektrische infrarood heaters
• Verlichting
• Diverse elektrapunten
• Vloerverwarming begane grond en verdieping (niet aangesloten)
Algemeen
Bouwjaar 2024
Bestemming
Enkelbestemming Bedrijventerrein, bedrijf tot en met categorie 4.2
Huurperiode
In overleg.
Huurbetaling
Per maand/kwartaal vooruit.
Huurprijsaanpassing
Jaarlijks, op basis van de wijziging van het maandprijs-indexcijfer volgens de consumentenprijsindex (CPI) reeks CPI-Alle Huishoudens (2015=100), gepubliceerd door het Centraal Bureau voor de Statistiek (CBS).
Zekerheidsstelling
Bankgarantie of waarborgsom ter grootte van 3 maanden huur inclusief servicekosten en de wettelijk verschuldigde omzetbelasting.
Overige condities
Huurovereenkomst op basis van het standaardmodel van de Raad voor Onroerende Zaken (ROZ), model januari 2015, zoals gehanteerd door de NVM. De verhuur geschiedt onder voorbehoud van goedkeuring door verhuurder.
Aanvaarding
In overleg.
Kenmerken
Overdracht
Bouw
Oppervlakten
Indeling
Energie
Omgeving
Parkeergelegenheid
Vraagprijs
€ 1.250 per maand
Status
Beschikbaar
Aanvaarding
In overleg
Hoofdfunctie
Bedrijfsruimte
Soort bouw
Bestaande bouw
Bouwjaar
2024
Oppervlakte
120 m²
Bedrijfshal oppervlak
120 m²
Vrije hoogte
4,7 m
Voorzieningen bedrijfshal
Overheaddeuren, betonvloer, toilet en pantry
Energielabel
Niet beschikbaar
Ligging
Bedrijventerrein
Parkeerplaatsen (niet overdekt)
2
Vergelijkbaar aanbod
En, wat zijn uw uitdagingen of dromen? We helpen u graag actief.
Misschien kunt u niet de woning of het bedrijfspand vinden dat een kant-en-klaar antwoord is op uw vraag. Misschien bent u benieuwd hoe wij tegen uw wensen aankijken, met onze kennis van de lokale markt en ons grote netwerk van aanbieders en zoekers. Mogen we met u meedenken?